
15 000 €
15 000 €
| Дополнительные расходы по сделке | |
|---|---|
| Не включены в стоимость продажи |
| Содержание | |
|---|---|
| Ежегодный налог | 2 232 € |
Возможно дистанционное проведение сделки без Вашего присутствия по доверенности!!!
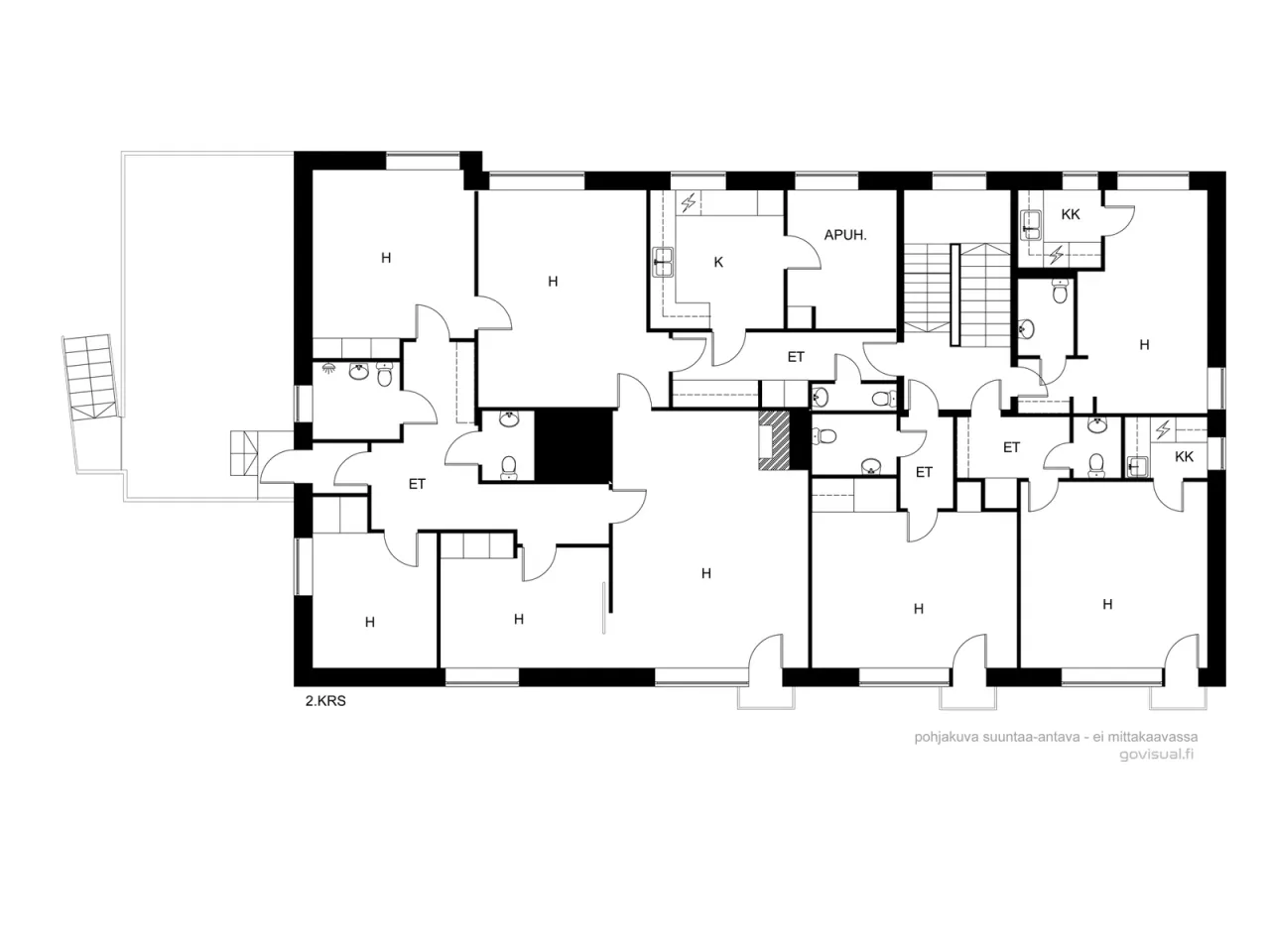
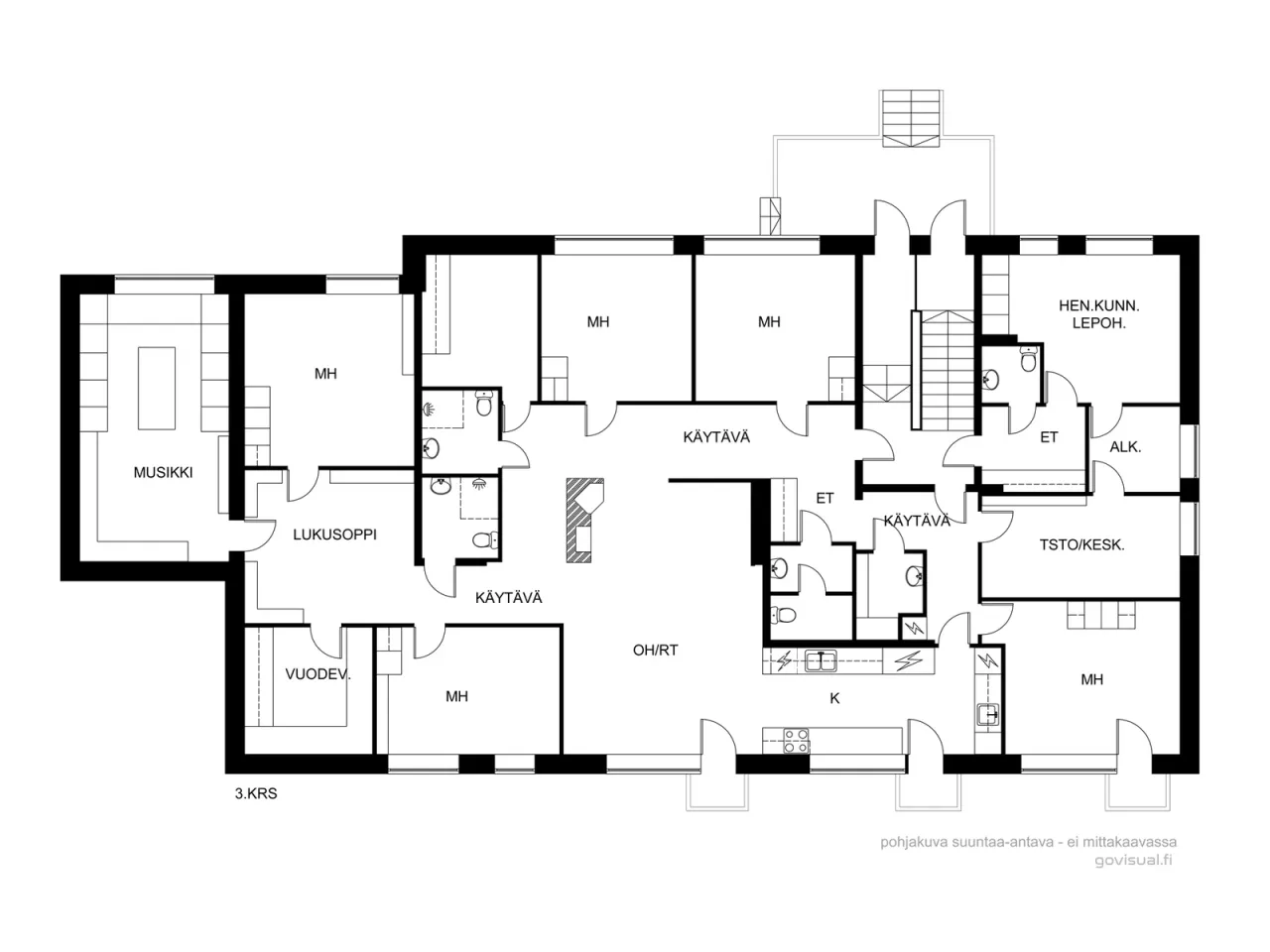
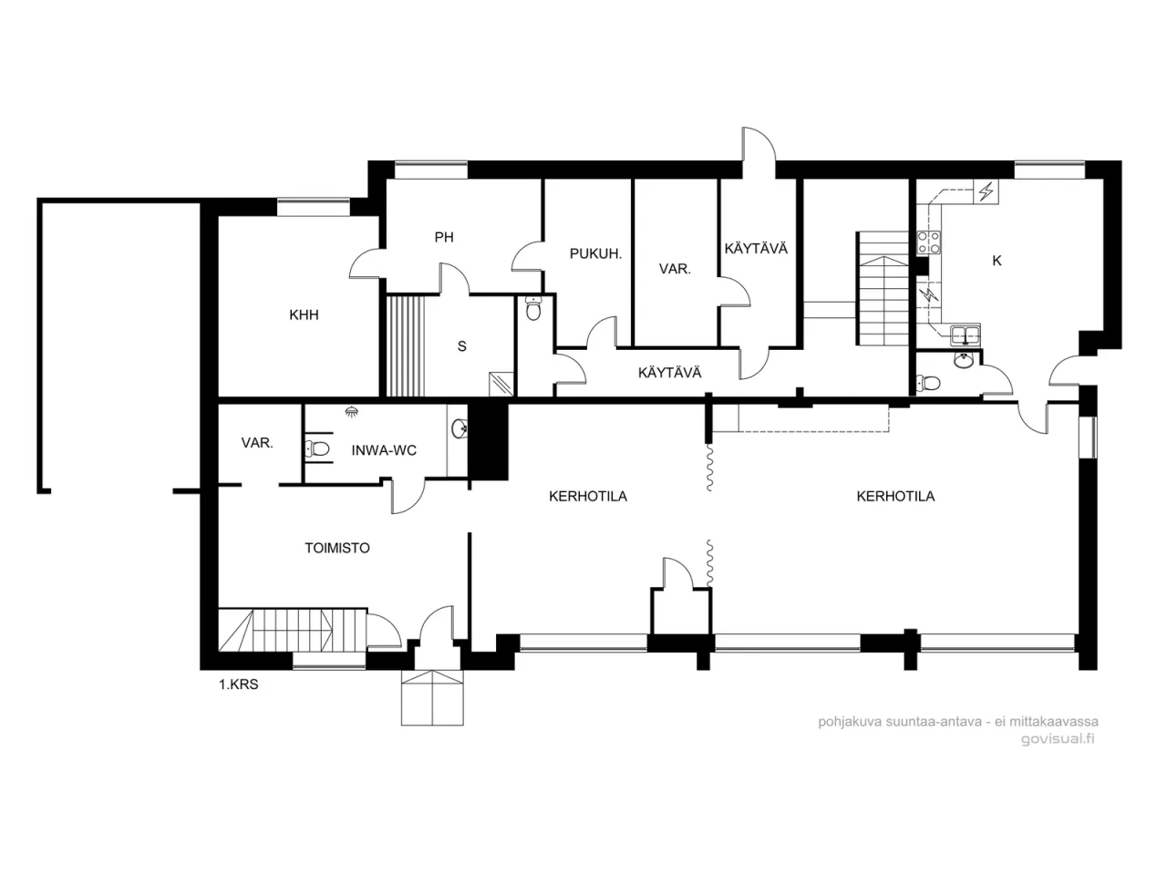
Продаётся многоквартирный дом на отдельном участке в непосредственной близости от центра города Kajaani. Участок площадью 1100 m² в собственности.
На первом этаже расположены коммерческое помещение и гараж, а на 1-м и 2-м этажах — жилые квартиры. Площадь составляет 717 кв. м + 389 кв. м в подвале. Дом 1956 года постройки. Первый этаж: магазины, около 129,6 м2, раздевалка и сауна, складские помещения, около 45,9 м2.
Квартиры частично отремонтированы.
Объект нуждается в модернизации.
Цена объекта 15000 евро.
Годовой налог на недвижимость - 2 232,34 евро.
Расходы на отопление в 2023 году составили 13 885,83 евро. Электричество и газ в 2023 году составили 3 239,65 евро. Неоплаченные счета за отопление (1 997,67 евро/11.12.2025). Задолженность по подключению к электросети составляет приблизительно 661,19 евро/11.12.2025. Неоплаченные счета за воду по состоянию на 8.12.2025 — 988,08 евро. Налог на недвижимость — 2 232,34 евро + проценты за 2025 год (неоплачено).
Налог на передачу права собственности — 3%, расходы на подтверждение сделки.
Здание пустует с осени 2024 года. В одной комнате протекает потолок, вода поступала с террасы сверху, и, по-видимому, в этой же комнате протекает радиатор. Ранее дом использовался как дом престарелых. Необходимо провести работы по повышению пожарной безопасности дома, и, как следствие, необходимо повторно подать заявку на разрешение на строительство. Теплообменник сломан и нуждается в замене.
Отремонтировав объект - эти квартиры можно сдавать в аренду!
Услуги: магазин S-Market 400 метров, центральная школа около 240 м, детский сад около 400 м, автобусная остановка 210 метров и Bowling 1,2 км.
Агентство имеет лицензию № 2013/PU1026A на право ведения риэлторской деятельности на территории всей страны и государственный сертификат самой надежной компании и доверия. Мы осуществляем юридическое сопровождение и полный комплекс услуг в течение всего процесса купли-продажи объекта недвижимости, начиная с выбора нужного варианта и заканчивая регистрацией с дальнейшим обслуживанием. Нам доступна вся база Финской недвижимости и мы подберем для Вас нужный объект.
ОКАЗЫВАЕМ ПОМОЩЬ В ОФОРМЛЕНИИ ПОЛНОГО КОМПЛЕКТА ДОКУМЕНТОВ ДЛЯ ПОДАЧИ НА ВНЖ НА ОСНОВАНИИ БИЗНЕС-ИММИГРАЦИИ, БИЗНЕС-КОНСАЛТИНГ, ЮРИДИЧЕСКИЕ И НАЛОГОВЫЕ КОНСУЛЬТАЦИИ.
ПОКУПКА И НАЛИЧИЕ ОБЪЕКТОВ ЖИЛОЙ НЕДВИЖИМОСТИ НЕ ДАЕТ ПРАВА НА ПОЛУЧЕНИЕ ВНЖ В ФИНЛЯНДИИ!
vipcon_lkv instagram