
97 000 €
97 000 €
| Цена продажи | 97 000 € |
| Цена за кв.м. | 1 266.67 € |
| Площадь | 64 м² |
| Этаж | 2 |
| Этажность | 11 |
| Всего комнат | 2 |
| Количество спален | 1 |
| Количество ванных | 1 |
| Стадия строительства | Новый дом |
| Год постройки | 2025 |
| Адрес | Болгария, Варна |
| Тип | Двухкомнатная квартира |
ВЫБОР КВАРТИР в микрорайоне Кайсиева Градина! НОВЫЙ ПРОЕКТ!!! ОТСРОЧКА ПЛАТЕЖА!!! ПРОВЕРЕННЫЙ СТРОИТЕЛЬ!!!
Код: 16748. Компания «Stefanov Invest» предлагает на продажу новый проект - жилой дом, расположенную в одном из самых благоустроенных районов города. Варна- Кайсиева градина. Район предлагает множество удобств - в непосредственной близости от главных бульваров города, автобусные остановки, школы, садики, детские площадки, супермаркеты, АЗС, поликлиника.
Рядом находится множество гипермаркетов, очень удобный и быстрый транспорт во все части города, школа, детский сад, рынок и многие другие удобства, доступные жителям.
Проект состоит из 3 подъездов, 11 этажей и предлагает широкий выбор одно-, двух- и трехкомнатных квартир.
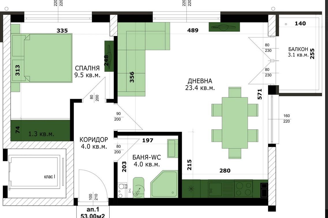
Двухкомнатная квартира, этаж 2/11, площадью 60 кв. м, функционально распределена следующим образом: прихожая, гостиная с кухонной зоной - 23,4 кв. м, спальня, ванная комната с туалетом и терраса. Цена 76 000 евро.
Трехкомнатная квартира, этаж 2/11, площадью 95 кв.м., функционально распределена следующим образом: прихожая, гостиная с кухонной зоной - 29,4 кв.м., две спальни /13 и 12 кв.м./, ванная комната, туалет и терраса.
Цена 113 250 евро.
Четырехкомнатная квартира, 11 этаж, площадью 120 кв. м, функционально распределена следующим образом: прихожая, гостиная с кухонной зоной - 27 кв. м, три спальни /14, 12 и 11 кв. м/, ванная комната с туалетом и две террасы. Цена 169 000 евро.
Для удобства жильцов предусмотрены крытые парковочные места по цене от 13 500 евро и открытые парковочные места по цене от 17 000 евро.
Степень завершенности - БДС;
-внутренние стены - кирпичные с гипсовой штукатуркой;
- потолки из гипсокартона
-полы помещений - цементная стяжка;
-ванная комната - туалет: пол - цементная стяжка, стены - штукатурка;
-эл. установки;
-Установка сантехники и отопления;
-Внешняя бронированная дверь с закрытой декоративной рамой;
Застройщик — зарекомендовавшая себя на рынке компания с многолетним опытом и исключительно высоким качеством выполнения строительных работ. Предлагаются три варианта оплаты в зависимости от возможностей покупателя и фиксированная цена на недвижимость, неизменная до окончания строительства.
Начало строительства - март. 2025
Акт образец 14 - конец месяца Март 2026 г.
Акт образец 15 - конец месяца Сентябрь. 2027
Акт 16 (Разрешение на эксплуатацию) - конец 2027 года.