
485 000 €
485 000 €
| Дополнительные расходы по сделке | |
|---|---|
| Не включены в стоимость продажи |
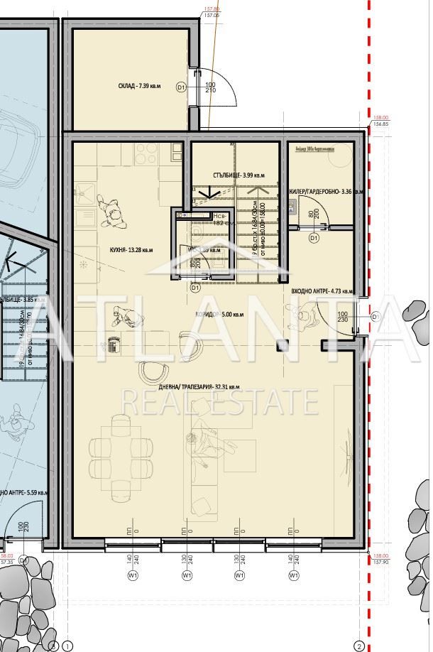
Предлагаем Вам новый дом в комплексе из трех домов на земельном участке площадью 1166 кв.м.
Код предложения: IR-4656
Распределено между тремя домами таким образом, чтобы обеспечить уединение и комфорт для каждого из них.
Внешние формы проекта выдержаны в чистом скандинавском стиле. Особое внимание также уделяется освещению дома, но в то же время уделяется внимание естественному охлаждению за счет запланированной теплоизоляции, естественному затенению больших окон, запланированному размещению комплекса в период летнего солнцестояния, а также предусмотренному подогреву полов и горячей воде для зимних месяцев! Возможность установки фотоэлектрических систем на крышах для дополнительной энергоэффективности, а также планируемое трехфазное электроснабжение для зарядки электромобилей — все это в совокупности создает уникальный комфорт проживания, низкие счета и устойчивую окружающую среду.
Здания будут подключены к городской канализационной и водопроводной сети.
Гидроизоляция фундамента здания будет осуществляться с помощью добавки в бетон для повышения водонепроницаемости бетона, дренажа площадки и газовой изоляции.
Кровли выполнены из железобетона и будут дополнены системой навесных фасадов с теплоизоляцией и дополнительной водоотталкивающей мембраной, герметизированной облицованными листами металла из замковой системы SRP немецкой компании LINDAB. Кровельная система будет плавно переходить от скрытого водостока к фасадам второго этажа, создавая ощущение монолитности.
Известняковые плиты на цоколе здания, поверхность которых обработана для уменьшения задержки пыли и твердых частиц. Приклеены высококачественным клеем и механически закреплены на фасаде. Кровля и стены второго этажа - навесной фасад немецкой фирмы LINDAB; Деревянная обшивка части фасада выполнена из обработанной термодревесины; Стеклянные перила на втором этаже;
Высококлассные алюминиевые столярные изделия от бельгийского производителя Reynaers Aluminium; Низкоэмиссионное четырехсезонное стекло; Стеклянные перила со светофильтром на балконах и террасах. Роскошные бронированные входные двери высотой 220см. немецкой компании Horman.
Планируется подготовка полной системы теплого пола, линий охлаждения настенных блоков, а также центрального водяного отопления. Вся система будет работать на тепловом насосе по выбору заказчика.
По желанию клиента может быть построена система «умный дом» для управления теплым полом, кондиционером, жалюзи и маркизами, а также освещением.
Начало строительства - сентябрь 2025 г., акт 16 - через 18 месяцев.