
1 090 000 €
1 090 000 €
Суперсовременная вилла с удивительной передовой архитектурой, которая оставит вас в восторге!
Ле Корбюзье была бы в восторге от этой виллы!
Вилла строится в Каштел-Штафилич недалеко от Сплита, в конце тупиковой дороги, в окружении полей и умиротворяющей природы, всего в 400 м от центра города, моря и прекрасных пляжей Кастелы.
Общая площадь дома: 214 м2
Чистая площадь дома: 176 м2 (закрытый) + 217м2 терраса
Общая площадь виллы: 393 м2
Земельный участок 642 кв.м.
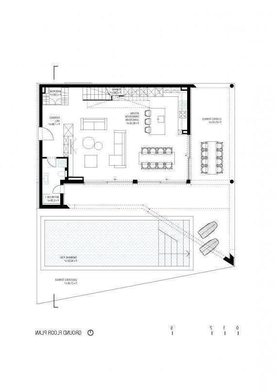
Дом состоит из трех уровней.
Первый этаж: прихожая, гардеробная, санузел, гостиная с кухней и столовой, которые соединены стеклянной стеной с просторной крытой террасой и бассейном.
1 этаж: коридор, хозяйская спальня с гардеробной и санузлом, три спальни, три санузла, лоджия.
Также есть возможность иметь три ванные комнаты наверху и одну комнату большего размера.
Верхний уровень - лучшая часть виллы - терраса на крыше с джакузи, шезлонгами и прекрасным видом. Идеальное место, чтобы расслабиться и провести вечер, любуясь закатом.
Дом в настоящее время бетонный, с окнами. Вы можете участвовать в выборе деталей интерьера, стиля, цвета, мебели.
Стоимость полностью отделанного и меблированного дома составит 890 000 евро. Он может быть завершен в 2022 году.
При покупке недвижимости в Хорватии покупатель несет дополнительные расходы около 7% от цены купли-продажи: налог на переход права собственности (3% от стоимости недвижимости), агентская комиссия (3% + НДС), гонорар адвоката (ок. 1%), нотариальная пошлина, судебная пошлина, оплата услуг сертифицированного переводчика. Подписание Агентского соглашения (на 3% комиссии + НДС) предшествует показу объектов.
Преимущества: Терраса на крыше, Бассейн, Спа, Современный