
Цена по запросу
Цена по запросу
Строится роскошная вилла с видом на море в районе Пореча.
Он находится всего в 2,5 км от прекрасных пляжей в тишине и зелени.
Завершение строительства ожидается в 2023 году.
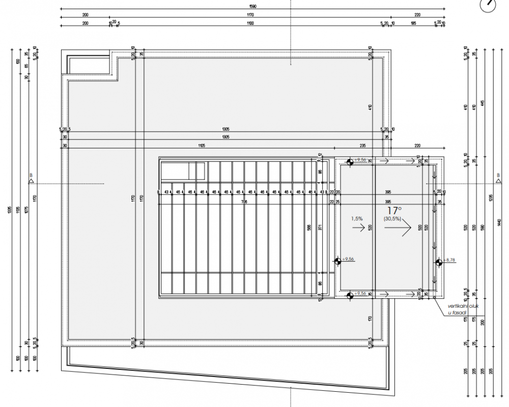
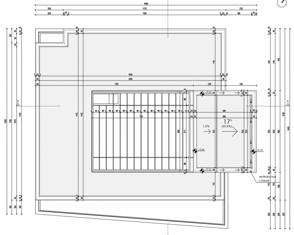
Вилла общей площадью 224,95 м2 расположена на участке площадью 772 м2.
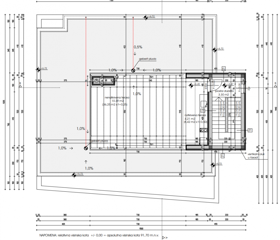
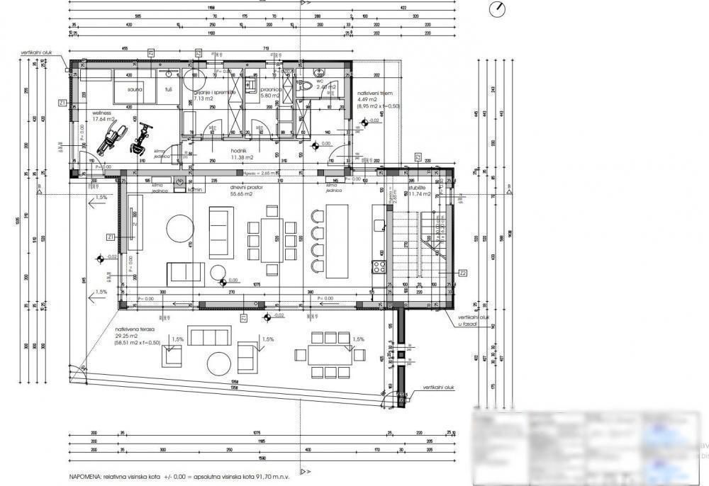
Первый этаж будет состоять из прихожей, туалета, прачечной, технического помещения, оздоровительного центра с сауной, кухни со столовой и просторной гостиной с концепцией открытого пространства с прямым выходом на крытую террасу. терраса с камином и сад идеально подходят для развлечения и отдыха с друзьями и семьей.
Перед крытой террасой находится бассейн общей площадью 32 м2 с солярием, где вы можете наслаждаться им в теплые летние месяцы.
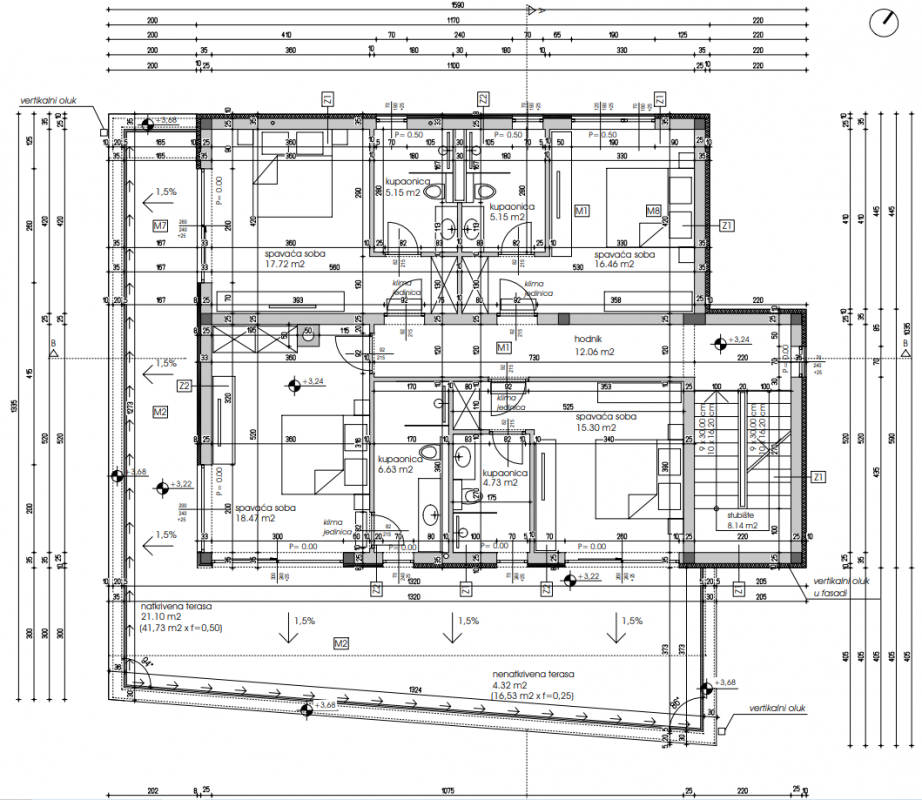
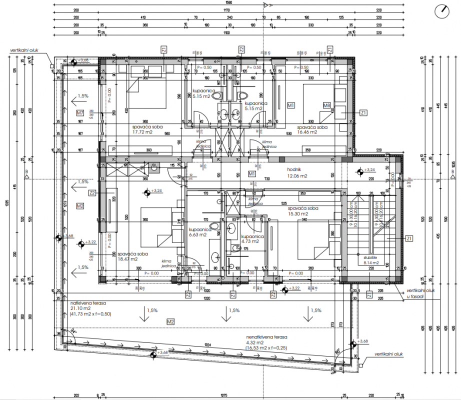
Первый этаж этой красивой виллы состоит из прихожей, четырех спален с отдельными ванными комнатами и выходом на крытую террасу.
На втором этаже есть терраса на крыше с видом на море и джакузи.
Отопление и охлаждение в этой современной вилле будет осуществляться за счет подогрева пола с помощью теплового насоса и кондиционера.
Вилла получит два парковочных места, сигнализацию и видеонаблюдение, кирпич 25 см + теплоизоляция 10 см. Столярные изделия (алюминий, цвет антрацит, трехслойное стекло).
Проект и заявленные стандарты качества очень перспективны.
При покупке недвижимости в Хорватии покупатель несет дополнительные расходы около 7% от цены купли-продажи: налог на переход права собственности (3% от стоимости недвижимости), агентская комиссия (3% + НДС), гонорар адвоката (ок. 1%), нотариальная пошлина, судебная пошлина, оплата услуг сертифицированного переводчика. Подписание Агентского соглашения (на 3% комиссии + НДС) предшествует показу объектов.
Преимущества: Терраса на крыше, Бассейн, Спа, Сауна, Подогрев пола, Сад, Современный