
550 000 €
550 000 €
Исключительная современная вилла в стадии строительства в районе Лабин!
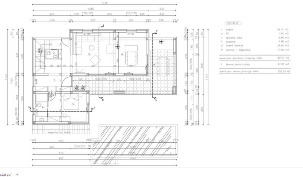
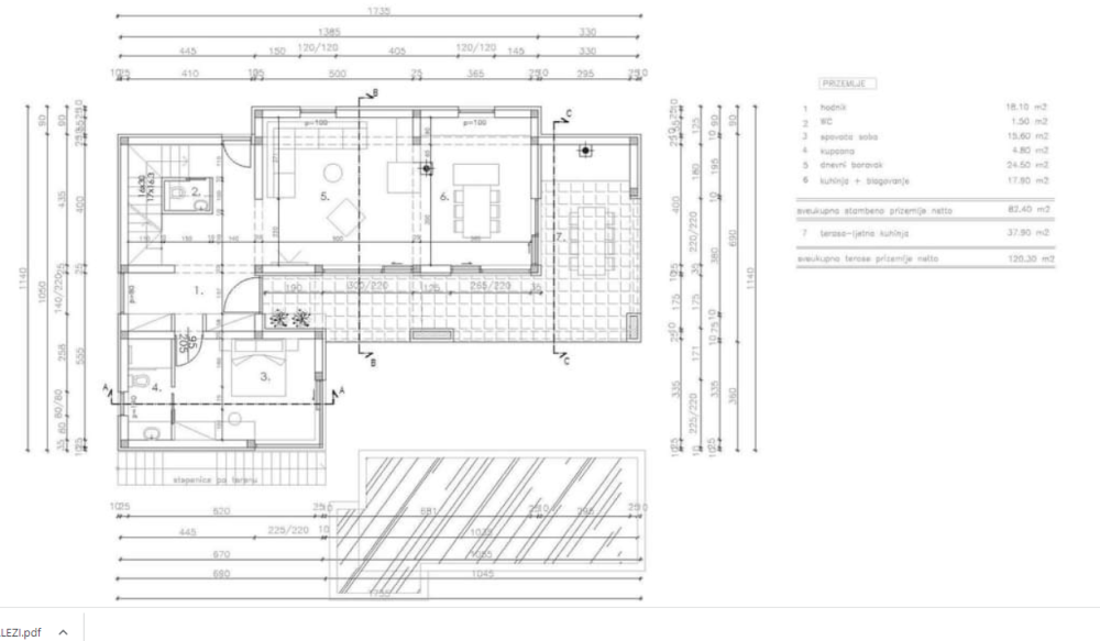
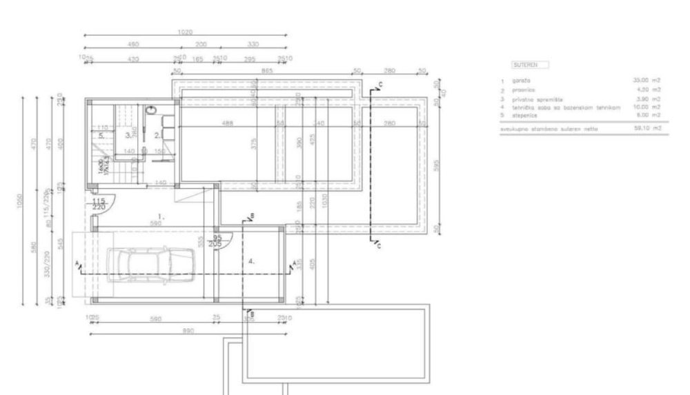
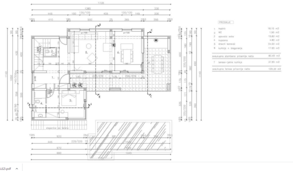
Общая площадь 180 кв.м. Земельный участок 710 кв.м.
Вилла будет завершена в 2023 году.
Рядом есть две похожие виллы.
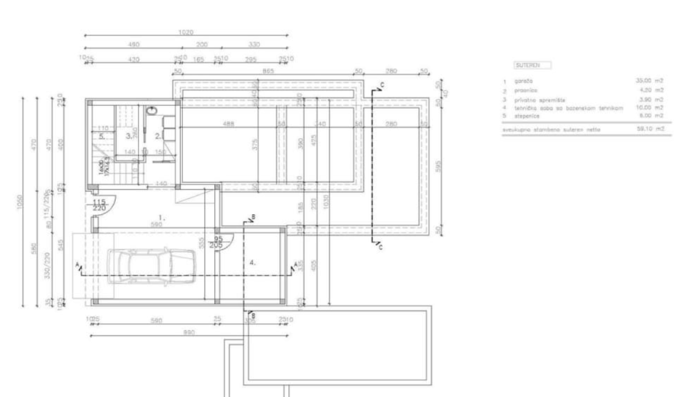
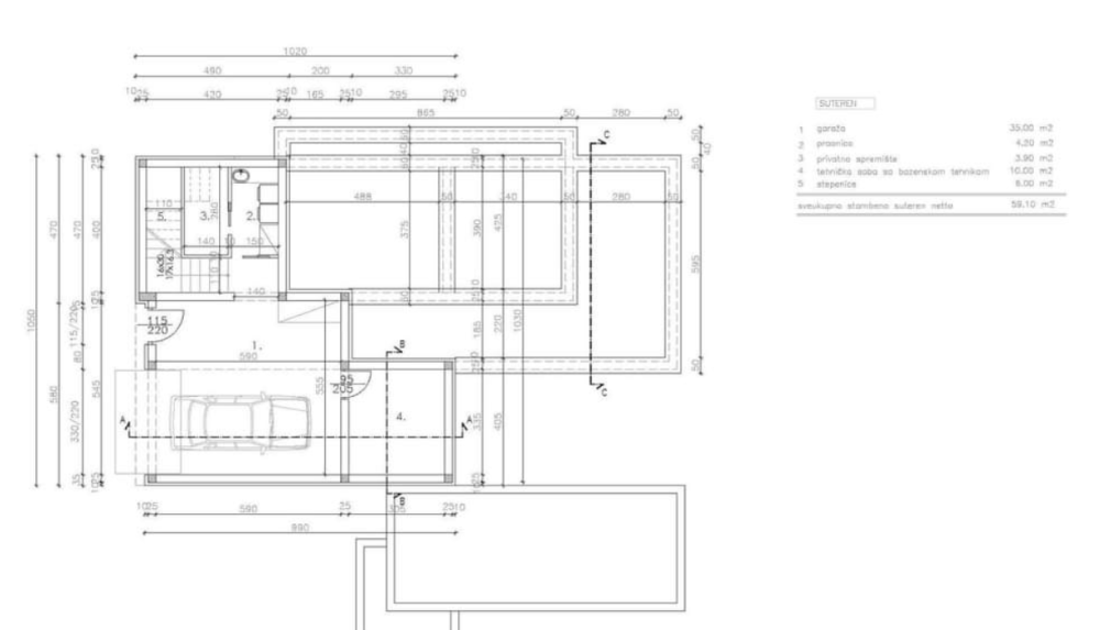
Вилла будет состоять из подвала, цокольного этажа и первого этажа. В цокольном этаже будет гараж, прачечная, кладовая и техническое помещение. Внутренняя лестница ведет на первый этаж, где будет кухня со столовой и гостиной, спальня, ванная и туалет. Из гостиной есть выход на крытую террасу с летней кухней, соединенную с бассейном, пляжем и садом. На первом этаже будут две спальни, каждая со своей ванной комнатой и выходом на террасу.
Планируется строительство первой очереди систем отопления и кондиционирования, «умный дом» - стандарт (автоматические жалюзи, центральные выключатели света, сигнализация...).
Сад будет благоустроен со встроенным орошением.
Есть возможность участвовать в строительстве, внести свой вклад в дизайн экстерьера и интерьера, а также по договоренности возможна отделка дома.
Идеальная недвижимость для семейной жизни или туристической аренды.
При покупке недвижимости в Хорватии покупатель несет дополнительные расходы около 7% от цены купли-продажи: налог на переход права собственности (3% от стоимости недвижимости), агентская комиссия (3% + НДС), гонорар адвоката (ок. 1%), нотариальная пошлина, судебная пошлина, оплата услуг сертифицированного переводчика. Подписание Агентского соглашения (на 3% комиссии + НДС) предшествует показу объектов.
Преимущества: Гараж, Бассейн, Хранилище, Сад, Современный