
747 000 €
747 000 €
Дом с современным дизайном и бассейном в районе Лабин!
Недалеко от города Лабин продается дом современного дизайна с бассейном.
Дом в идиллическом поселке спроектирован с соблюдением профессиональных, правовых норм и документации территориального планирования и построен по самым высоким стандартам жилищного строительства.
Благодаря своей скромной архитектуре он не нарушает окружающую среду, а создает синергию природной среды, традиционной истрийской архитектуры и современного дизайна. Традицию символизируют камень и двускатная крыша, а современное выражение — стеклянная стена большого формата.
Простота конструкции традиционной архитектуры привела к созданию компактной планировки и приятного просторного пространства.
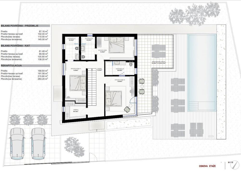
Современный интерьер, в котором мягкие и светлые землистые цвета сочетаются с элегантным черным, разделен на два этажа общей чистой площадью 191,58 м² и излучает элегантность и простоту и обеспечивает высокий уровень комфорта.
Первый этаж представляет собой пространство открытой планировки, объединяющее гостиную, столовую и кухню с выходом на просторную крытую террасу с летней кухней.
Планировку первого этажа дополняют спальня со своей ванной комнатой, гостевой туалет и котельная.
На втором этаже расположены три спальни с ванными комнатами, прачечная и просторная терраса.
Двор 601 кв.м. полностью огорожен и элегантно украшен травой и средиземноморскими растениями, а центральное место занимает бассейн площадью 37 м² с зоной для загара.
Указанная цена относится к этапу «под ключ» с установленной сантехникой, встроенными шкафами и кухней с бытовой техникой.
Эта прекрасно интегрированная недвижимость представляет собой исключительную возможность для комфортной семейной жизни, а также в качестве инвестиционной инвестиции в туристический арендный бизнес.
При покупке недвижимости в Хорватии покупатель несет дополнительные расходы около 7% от цены купли-продажи: налог на переход права собственности (3% от стоимости недвижимости), агентская комиссия (3% + НДС), гонорар адвоката (ок. 1%), нотариальная пошлина, судебная пошлина, оплата услуг сертифицированного переводчика. Подписание Агентского соглашения (на 3% комиссии + НДС) предшествует показу объектов.
Преимущества: Бассейн, Урбанизированный, Современный