
1 700 000 €
1 700 000 €
Эта трехэтажная вилла с уникальной архитектурой находится всего в 50 метрах от моря на острове Чиово, откуда открывается вид на кристально голубые воды и побережье Трогира и Сегета.
Остров Чиово (ныне полуостров) известен своими скрытыми бухтами и прекрасными пляжами и хорошо связан с материком и городом Трогир, внесенным в список Всемирного наследия ЮНЕСКО, двумя мостами.
Международный аэропорт Сплита находится всего в 13 км.
Эта вилла, сочетающая элегантность и современный дизайн, органично вписывается в окружающую среду и является частью роскошного комплекса из семи современных вилл.
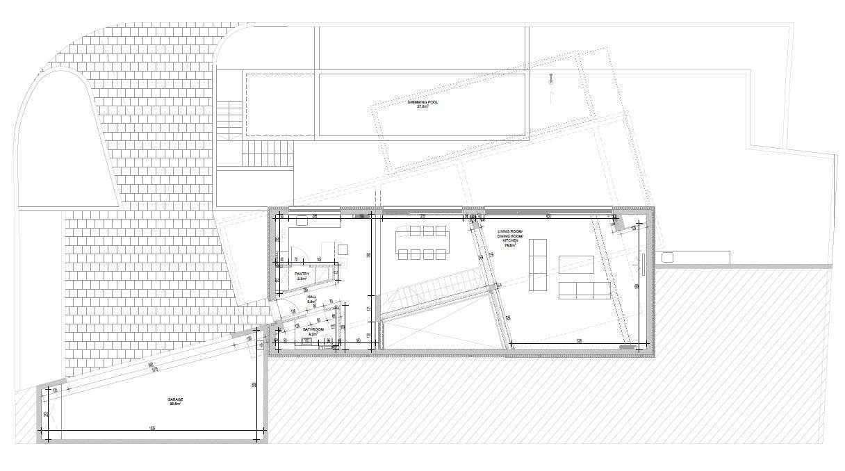
Вилла расположена на участке площадью 728 м² и имеет жилую площадь 326 м² на трёх этажах.
На цокольном этаже есть ванная комната, прачечная и просторная площадь 53 м², которая идеально подходит для фитнес-центра, оздоровительного центра или винодельни, в зависимости от предпочтений владельца. На первом этаже расположены столовая, кухня, гостиная, ванная комната и кладовая, а также большая терраса с современным бассейном и гаражом на две машины. На втором этаже расположены четыре спальни, три дополнительные ванные комнаты и просторная открытая терраса с прекрасным видом на море.
Светлые, просторные номера отделаны эксклюзивными деталями, включая керамическую плитку размером 120х240 см, деревянные полы, межкомнатные двери без рам и большие окна.
Тщательно подобранное освещение дополняет дизайн сада, создавая особую атмосферу.
Элегантный дизайн, комфорт, близость к морю и отличное сообщение с многочисленными туристическими центрами Далмации делают эту исключительную недвижимость большим потенциалом для туристической сдачи в аренду!
Ref: RE-LB-IRO1030При покупке недвижимости в Хорватии покупатель несет дополнительные расходы около 7% от цены купли-продажи: налог на переход права собственности (3% от стоимости недвижимости), агентская комиссия (3% + НДС), гонорар адвоката (ок. 1%), нотариальная пошлина, судебная пошлина, оплата услуг сертифицированного переводчика. Подписание Агентского соглашения (на 3% комиссии + НДС) предшествует показу объектов.
Преимущества: Гараж, Бассейн, Хранилище, Спортзал, Спа, Сад, Современный