
650 000 €
650 000 €
На полпути между Пулой и Опатией, высоко над побережьем Истрии, расположен небольшой городок Лабин.
В 1950-х и 60-х годах его средневековое ядро было центром добычи угля. Сегодня это место, где история и современность смешиваются. Город известен своими очаровательными бухтами, изысканной гастрономией и дружелюбными, остроумными местными жителями, что делает его любимым местом для посетителей из немецкоязычных стран. Здесь вам гарантирован теплый прием.
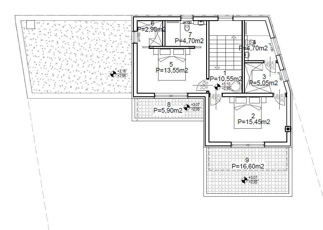
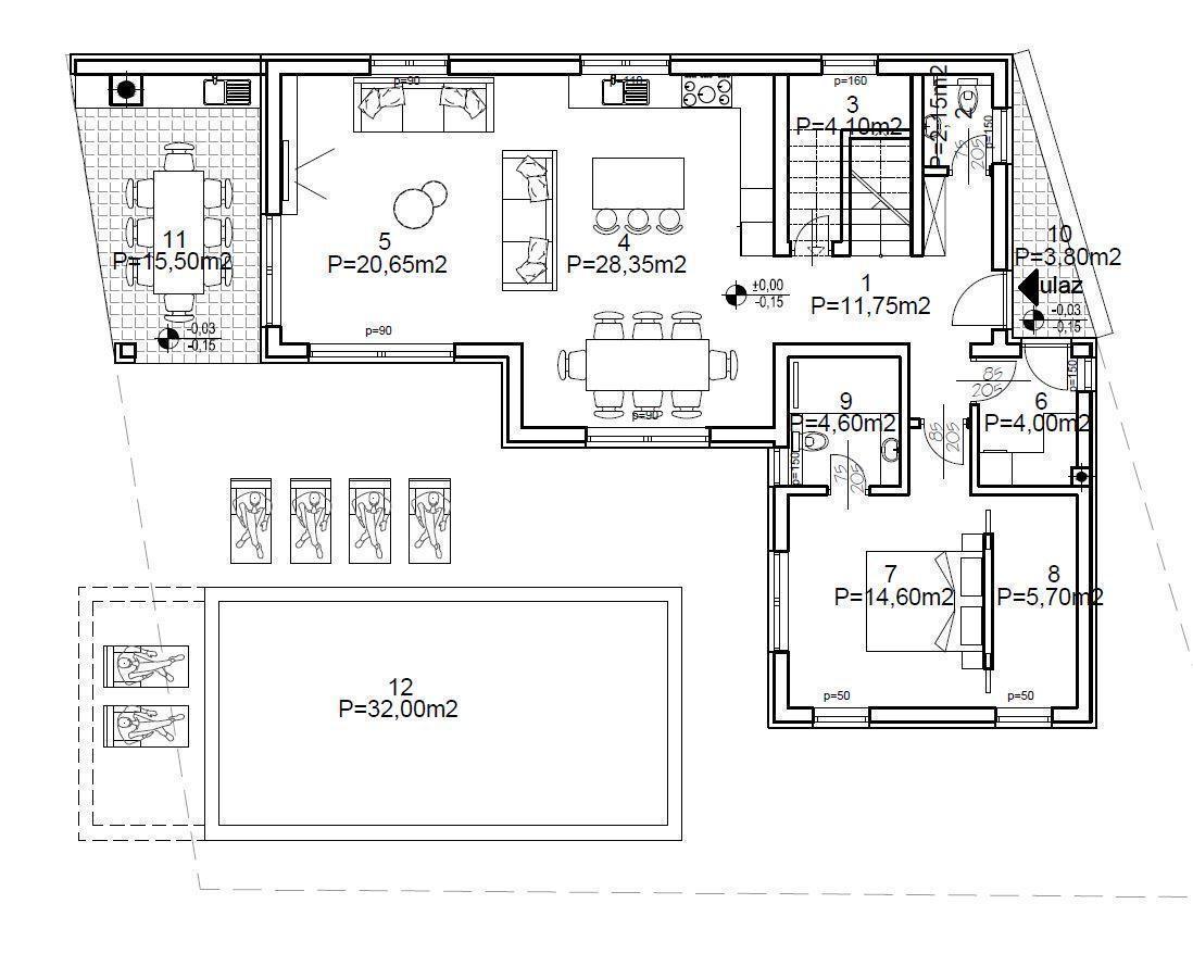
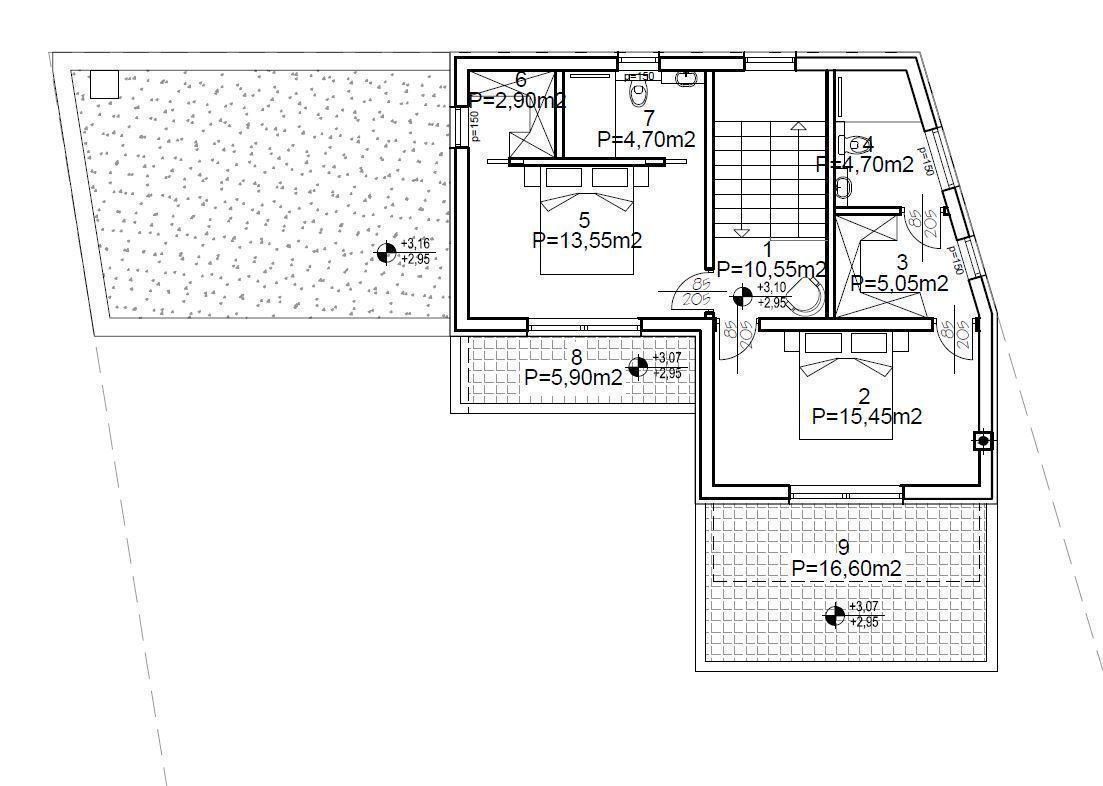
На окраине города продается прекрасный отдельно стоящий дом площадью 195 м².
Вилла занимает два этажа. На первом этаже находятся кухня, гостиная со столовой, туалет, кладовая, спальня с гардеробной и ванной комнатой, прачечная и две открытые террасы. На одной террасе будет летняя кухня, а другая ведет к бассейну площадью 32 м².
Наверху есть две просторные спальни, каждая со своей ванной комнатой, гардеробной и открытой террасой. Дом будет отапливаться кондиционером и теплым полом. В настоящее время конструкция находится под крышей с установленными столярными изделиями, и ожидается, что строительство будет завершено в начале 2024 года.
Недвижимость продается «под ключ», включая полностью меблированную кухню и бытовую технику.
Площадь земельного участка составляет 995 кв.м.
Учитывая ее востребованное расположение, близость к морю и всем удобствам, эта вилла идеально подходит для туристической аренды или семейного проживания.
Ref: RE-U-33379При покупке недвижимости в Хорватии покупатель несет дополнительные расходы около 7% от цены купли-продажи: налог на переход права собственности (3% от стоимости недвижимости), агентская комиссия (3% + НДС), гонорар адвоката (ок. 1%), нотариальная пошлина, судебная пошлина, оплата услуг сертифицированного переводчика. Подписание Агентского соглашения (на 3% комиссии + НДС) предшествует показу объектов.
Преимущества: Бассейн, Хранилище, Подогрев пола, Отдельно стоящий