
1 765 000 €
1 765 000 €
Роскошная и просторная современная вилла всего в 5 км от моря рядом с Рабацем (Лабин) теперь доступна для продажи, расположенная на большом участке площадью 1928 м² в тихом и зеленом окружении на юго-восточном побережье Истрии.
Находясь в районе, где холмы с зелеными склонами встречаются с Адриатическим морем, этот регион сочетает в себе очарование природы и культурное наследие. Здесь расположены города Лабин и Рабац — схожие по размеру, но отличающиеся характером.
Лабин, расположенный на высоте 320 метров над уровнем моря, всего в пяти минутах от белоснежных гальечных пляжей Рабаца. С богатой горной историей и кратким периодом как независимая республика, Лабин сегодня сочетает в себе старое и новое, историю и креативность, традиции и туризм.
Сразу за пределами Лабина, в спокойном месте, окруженном природой, эта просторная роскошная вилла предлагает утонченный образ жизни с акцентом на современный дизайн и комфорт.
Построенная из высококачественных материалов, интерьер отличается тщательно подобранной современной эстетикой, определяемой приглушенными тонами, создающими элегантную нейтральную атмосферу, идеально соответствующую современной архитектуре виллы.
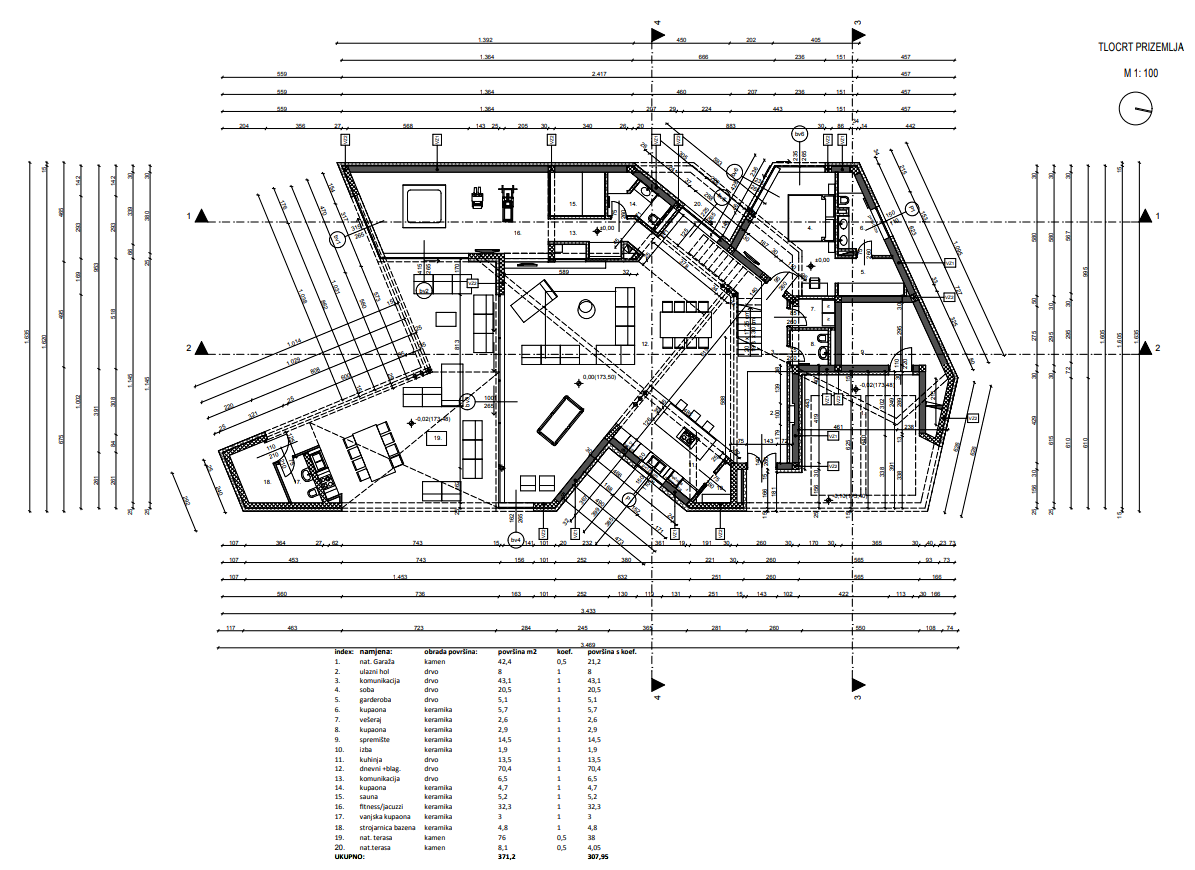
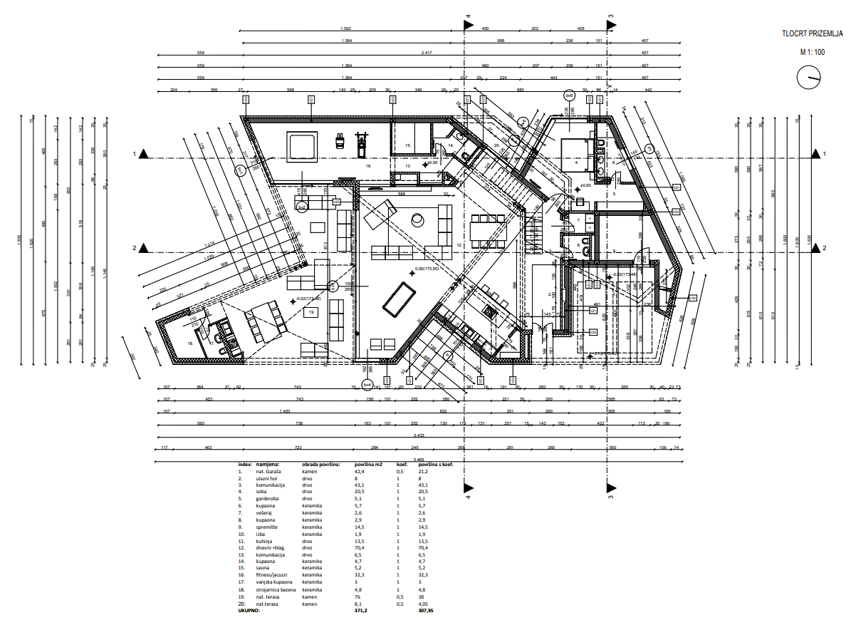
Дом занимает площадь 500 м² на двух этажах. На первом этаже находится открытая гостиная, кухня и столовая с прямым выходом на крытую террасу, идеально подходящую для жизни на свежем воздухе.
Этот уровень также включает одну спальню с ванной комнатой, зону для отдыха и фитнеса с сауной, гидромассажной ванной, душем и тренажерным залом, а также подсобное помещение с прачечной и местом для хранения.
На втором этаже находятся три дополнительные спальни, каждая с отдельной ванной комнатой и выходом на террасу с панорамным видом на окружающий ландшафт.
Вилла оборудована системой климат-контроля для отопления и охлаждения, а на первом этаже установлено теплое полы для дополнительного комфорта в холодные месяцы.
Экстерьер виллы также впечатляет. Прекрасно оформленный двор включает в себя подогреваемый бассейн площадью 80 м², площадку для загара, полностью оборудованную летнюю кухню и детскую площадку, предоставляя все элементы для семейного отдыха или развлечения гостей.
Благодаря щедрой планировке, роскошным удобствам и спокойному местоположению, эта вилла является идеальным выбором для тех, кто ищет комфортное семейное жилье или инвестицию в высококлассную аренду на побережье Истрии.
Дом на 90% меблирован.
Эта цена включает только землю площадью 1,928 м², на которой расположен дом, но возможно приобрести дополнительный участок за дополнительную плату.
При покупке недвижимости в Хорватии покупатель несет дополнительные расходы около 7% от цены купли-продажи: налог на переход права собственности (3% от стоимости недвижимости), агентская комиссия (3% + НДС), гонорар адвоката (ок. 1%), нотариальная пошлина, судебная пошлина, оплата услуг сертифицированного переводчика. Подписание Агентского соглашения (на 3% комиссии + НДС) предшествует показу объектов.
Преимущества: Бассейн, Хранилище, Спортзал, Спа, Сауна, Подогрев пола, Современный