
1 455 000 €
1 455 000 €
На продажу предлагается роскошная вилла в стадии строительства, расположенная в тихом и возвышенном месте над Сплитом, в живописной местности Клиса, Хорватия. Эта современная собственность предлагает редкое сочетание современной архитектуры, престижного расположения на холме и отличной транспортной доступности к побережью Далмации и городу Сплит.
Идеально расположенная всего в 6 километрах от Адриатического моря, в 10 километрах от центра Сплита и в 20 километрах от международного аэропорта Сплита, эта вилла идеально подходит для круглогодичного проживания семьи или как высококлассная инвестиция в процветающий рынок краткосрочной аренды. Панорамные виды на море и побережье действительно исключительны.
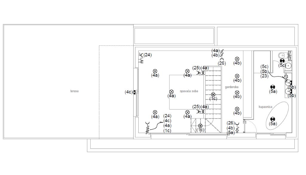
Вилла имеет общую полезную площадь 390 квадратных метров и распределена на четырех уровнях — подвал, первый этаж, второй этаж и третий этаж — все соединены внутренней лестницей.
Подвальный уровень спроектирован с учетом включения гаража, тренажерного зала, сауны, серверной, туалета и помещений для оборудования бассейна и хранения.
Первый этаж включает в себя открытое пространство с большой кухней, обеденной зоной и гостиной, которые выходят прямо на просторную террасу с бесконечным бассейном и зоной для загара — предлагая захватывающие, ничем не прерываемые виды на море. Этот уровень также включает в себя гостевую спальню с отдельной ванной комнатой, дополнительный туалет и отдельную кладовую.
Второй этаж состоит из четырех просторных спален, каждая из которых имеет собственную ванную комнату, а также дополнительное пространство для хранения. На третьем этаже находится дополнительная спальня с гардеробной, частной ванной комнатой и доступом к большой крытой террасе с захватывающими панорамными видами на Адриатику и окружающие горы.
Вилла продается на этапе высококачественной оболочки. Фасад здания завершен, установлено теплое полы по всему периметру, в настоящее время укладываются стяжки. Это дает будущему владельцу гибкость в завершении интерьера в соответствии с личными предпочтениями и стандартами дизайна.
Эта исключительная собственность в Клисе предлагает идеальное сочетание спокойной жизни в природной среде и близкого доступа к городским удобствам, что делает ее идеальной как для частного проживания, так и для премиум-инвестиций в недвижимость с высоким потенциалом для роскошной аренды на отпуск.
Ref: RE-LB-IRO2639При покупке недвижимости в Хорватии покупатель несет дополнительные расходы около 7% от цены купли-продажи: налог на переход права собственности (3% от стоимости недвижимости), агентская комиссия (3% + НДС), гонорар адвоката (ок. 1%), нотариальная пошлина, судебная пошлина, оплата услуг сертифицированного переводчика. Подписание Агентского соглашения (на 3% комиссии + НДС) предшествует показу объектов.
Преимущества: Терраса на крыше, Гараж, Хранилище, Спортзал, Сауна, Подогрев пола, Урбанизированный, Современный