
Цена по запросу
Цена по запросу
Расположенная в престижном районе Ичићи недалеко от Опатии, эта эксклюзивная вилла представляет собой редкую возможность завершить строительство вашего дома мечты всего в 800 метрах от моря, с захватывающим видом на море и в непосредственной близости от недавно построенного курорта Marriott.
Недвижимость занимает почти 1000 квадратных метров земли на частной улице без сквозного движения, предлагая как уединение, так и спокойствие в одном из самых востребованных мест на адриатическом побережье.
Вилла продается на стадии Рохбау, но может быть завершена текущим застройщиком в соответствии с пожеланиями покупателя.
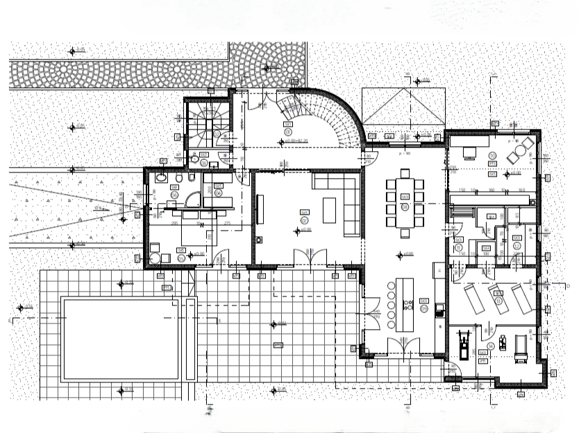
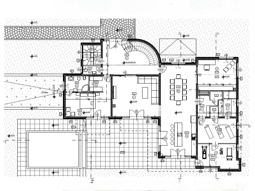
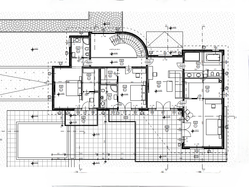
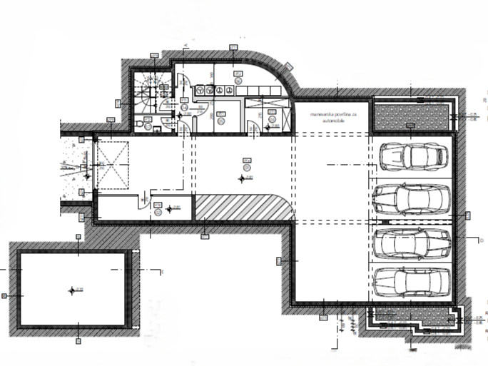
Эта роскошная вилла имеет общую жилую площадь 400 квадратных метров, распределенную на двух просторных этажах плюс подземный гараж. Первый этаж занимает 216 квадратных метров, в то время как второй этаж простирается на 228 квадратных метров, предоставляя щедрое жилое пространство, спроектированное для комфорта, функциональности и современной семейной жизни. Каждый этаж имеет исключительно высокие потолки 3,5 метра, что усиливает ощущение простора и роскоши по всему дому. Просторные террасы предлагают панорамный вид на море и остров Крес, создавая идеальные условия для жизни на свежем воздухе и отдыха.
Планировка виллы включает гараж и большие открытые жилые зоны, а сад предлагает достаточно места для таких удобств, как бассейн, зоны для загара и зоны для отдыха на свежем воздухе. Расположение недвижимости обеспечивает солнечное освещение в течение всего дня, а запланированные стены и заборы обеспечат дополнительную приватность для будущих владельцев.
Эта собственность в настоящее время принадлежит компании, что позволяет приобрести долю в компании или приобрести саму виллу с начатым строительством. Местоположение крайне удобное: пятиминутная прогулка ведет вниз к пляжу, минутная поездка доставит вас к морю, а до будущего курорта Marriott всего одна минута. Центр Опатии находится примерно в семи минутах на машине, что позволяет наслаждаться удобствами города, живя в спокойной обстановке.
Эта вилла представляет собой уникальную возможность для тех, кто ценит очарование Ичићи и Опатии и хочет владеть домом высшего качества в первоклассном месте. Чтобы организовать просмотр, свяжитесь с надежным агентом; консультации на немецком языке доступны.
Примечание: Цена установлена на стадии Рохбау. Она составляет более 1 миллиона евро.
При покупке недвижимости в Хорватии покупатель несет дополнительные расходы около 7% от цены купли-продажи: налог на переход права собственности (3% от стоимости недвижимости), агентская комиссия (3% + НДС), гонорар адвоката (ок. 1%), нотариальная пошлина, судебная пошлина, оплата услуг сертифицированного переводчика. Подписание Агентского соглашения (на 3% комиссии + НДС) предшествует показу объектов.
Преимущества: Гараж, Бассейн, Сад, Современный