
701 500 €
701 500 €
| Цена продажи | 701 500 € |
| Цена за кв.м. | 6 556.07 € |
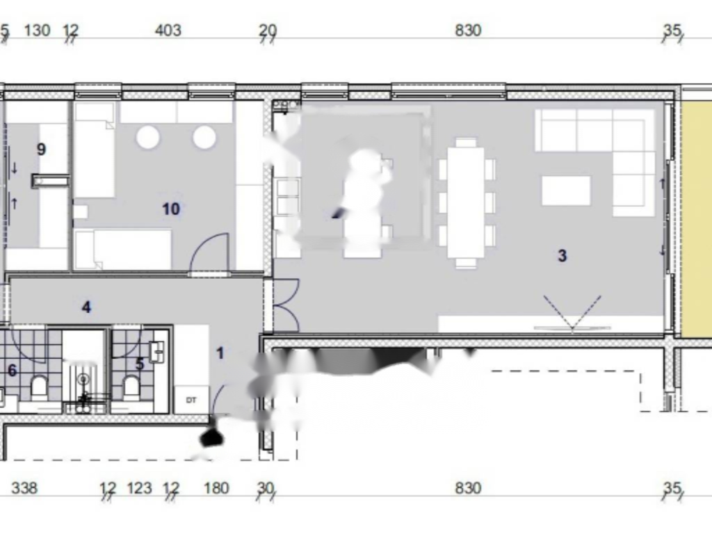
| Площадь | 107 м² |
| Этаж | 1 |
| Всего комнат | 4 |
| Количество спален | 3 |
| Количество ванных | 2 |
| Стадия строительства | Строящийся объект |
| Срок сдачи | 2025 |
| Адрес | Хорватия, Опатия |
| Тип | Четырехкомнатные квартиры и более |
Предлагается эксклюзивный двухуровневый квартира в Воложке общей площадью 107 м² с панорамным видом на море. Расположенная на первом этаже трехэтажного здания, квартира сочетает в себе современный дизайн и функциональность пространства.
Внутреннее пространство включает три спальни, гостевой туалет, две ванные комнаты и просторную зону "открытого пространства", объединяющую гостиную, кухню и столовую, выходящую на крытую террасу. Высококачественная отделка подчеркивает комфорт и стиль, среди которых алюминиевые столярные изделия, системы «теплового насоса» и видеонаблюдение.
К преимуществам относится возможность адаптации интерьера в соответствии с предпочтениями будущих владельцев. Ожидаемое завершение строительства — конец 2025 года.
Опатия — живописный приморский город на Адриатическом море, известный своими великолепными природными пейзажами. Расположенный у подножия горы Учка, этот курортный город славится чистыми пляжами, исторической архитектурой и многими туристическими достопримечательностями. Из Опатии открываются изумительные виды на море и близлежащие острова Крк и Црес. Город богат историей и культурными памятниками, что делает его идеальным местом для жизни и отдыха.