
399 000 €
399 000 €
| Цена продажи | 399 000 € |
| Цена за кв.м. | 4 433.33 € |
| Площадь | 90 м² |
| Этаж | 1 |
| Всего комнат | 2 |
| Количество спален | 2 |
| Количество ванных | 2 |
| Стадия строительства | Вторичная недвижимость |
| Год постройки | 1918 |
| Адрес | Хорватия, Опатия |
| Тип | Двухкомнатная квартира |
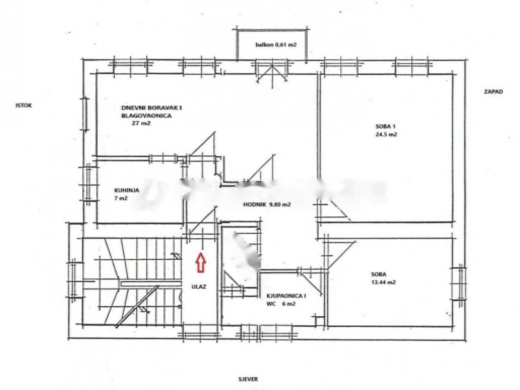
Просторный трехкомнатный квартира площадью 90 м² расположена в самом центре Опатии. Это идеальное место для комфортного проживания, сочетающее историческую архитектуру и современные удобства. Квартира занимает весь первый этаж здания, построенного в 1918 году и полностью обновленного в 2019 году.
Квартира включает в себя:
Дополняют комфорт проживания отдельные климатические установки, обеспечивающие комфортный микроклимат в любое время года. Для отопления предусмотрены электрические радиаторы и дровяная печь.
Квартира имеет собственный участок сада площадью 97 м² и кладовую на 19 м². Орентация на все стороны света обеспечивает естественное освещение и очаровательные морские виды.
Близость к морю и развитая инфраструктура вокруг делают эту недвижимость еще более привлекательной. В пешей доступности расположены: уютные магазины, школа, детский сад, банк, почта, а также фитнес- и спортивные центры. Для любителей культурного досуга рядом находится кинотеатр.
Квартира подключена к городской канализации, водопроводу и электросети. Все пути имеют асфальтовое покрытие. Отсутствие собственного парковочного места компенсируется прекрасной транспортной доступностью и удобствами близлежащих инфраструктурных объектов.
Энергетический сертификат находится в стадии разработки, что дает будущим владельцам уверенность в энергоэффективности жилья.