
830 466 €
830 466 €
| Цена продажи | 830 466 € |
| Цена за кв.м. | 6 643.73 € |
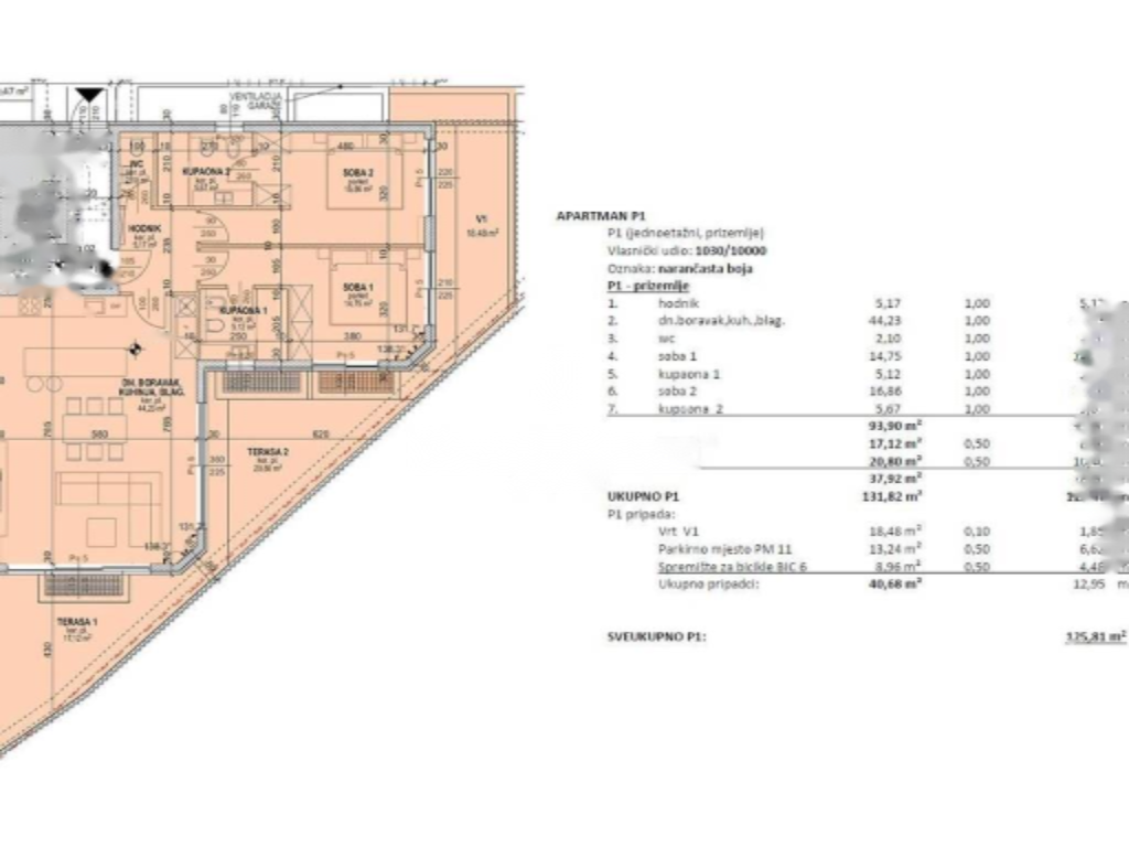
| Площадь | 125 м² |
| Этаж | 1 |
| Всего комнат | 3 |
| Количество спален | 2 |
| Количество ванных | 2 |
| Стадия строительства | Строящийся объект |
| Срок сдачи | 2024 |
| Адрес | Хорватия, Опатия |
| Тип | Трёхкомнатная квартира |
Представляем вашему вниманию роскошный новый апартамент в изысканном районе Опатии, с видом на море и современным дизайном. Находится в новостройке с бассейном, лифтом и подземным гаражом — всё для вашего комфорта и уединения.
Общая площадь квартиры составляет 125 кв.м, включая 2 спальни, 2 ванные комнаты, гостевой туалет, просторную гостиную с кухней и столовой. Внутренняя площадь — 94 кв.м, терраса — 38 кв.м, а также доступен частный сад размером 18 кв.м. Проект выполнен с использованием самых современных материалов и обеспечивает максимальную энергоэффективность.
Опатия — жемчужина Адриатики, известна своей историей и чарующей архитектурой. В непосредственной близости от вашего нового дома находятся великолепные пляжи и все необходимые городские удобства, что делает это место идеальным для жизни и отдыха. Потрясающие виды на море и центр города станут вам доступны ежедневно.