
4 830 000 €
4 830 000 €
| Цена продажи | 4 830 000 € |
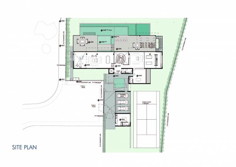
| Площадь дома | 1 372 м² |
| Площадь участка | 2 320 м² |
| Этажность | 3 |
| Всего комнат | 7 |
| Количество спален | 6 |
| Количество ванных | 6 |
| Стадия строительства | Новый дом |
| Адрес | Кипр, Пафос, Пея |
| Расположение | в горах, в пригороде |
| До аэропорта | 27 км |
| До пляжа | 3500 м |
| Дополнительные расходы по сделке | |
|---|---|
| Не включены в стоимость продажи | |
| Налог при покупке | 5 % |
Роскошная вилла с 6 спальнями и видом на море
Эта необыкновенная роскошная вилла с 6 спальнями, расположенная на живописном плато Пейи, является воплощением богатства и изысканности. Она спроектирована так, чтобы органично вписаться в окружающую природу, предлагая гармоничное сочетание современной элегантности и захватывающих дух пейзажей. В десяти минутах езды находятся отмеченные голубым флагом песчаные пляжи Корал Бэй, а также частная английская школа TLC.
Когда вы приближаетесь к вилле, вас встречает парадный вход, который задает тон предстоящим роскошным впечатлениям. Территория дома украшена пышными садами, пальмами и тщательно обработанной каменной кладкой, создающей атмосферу вневременного средиземноморского очарования. Одним из центральных элементом этой великолепной виллы, несомненно, является потрясающий бассейн каскадно и плавно ниспадающий на нижний уровень, создавая ощущение спокойствия и безмятежности, а также идеальный фон для встреч и отдыха на свежем воздухе. Звук текущей воды всегда будет успокаивающим саундтреком к отдыху на свежем воздухе.
Зайдя внутрь, вы увидите тщательно продуманный интерьер, который излучает роскошь на каждом шагу. Просторные жилые помещения украшены высокими потолками, дизайнерским освещением и окнами от пола до потолка, из которых открывается панорамный вид на Средиземное море и западное побережье Кипра. Естественный свет заливает каждый уголок виллы, создавая теплую и уютную атмосферу. Кухня для гурманов — мечта кулинарного энтузиаста, оснащенная новейшей бытовой техникой, индивидуальной мебелью и обширным островом. Это идеальное место, чтобы создавать кулинарные шедевры, наслаждаясь потрясающими видами. Каждая из шести спален сама по себе представляет собой уединение с ванными комнатами и балконами с потрясающим видом. Главная спальня — это оазис наслаждения, в котором есть ванная комната в стиле спа, гардеробная и собственная терраса, где вы можете насладиться утренним кофе, любуясь лазурными водами Средиземного моря.
Пейзажный бассейн, кажется, органично сливается с морем за его пределами, обеспечивая освежающий отдых в теплые кипрские дни, а крытая обеденная зона на открытом воздухе со встроенным барбекю предлагает идеальные условия для трапезы на свежем воздухе.
С заходом солнца вилла превращается в волшебный рай. Стратегически расположенное освещение подчеркивает архитектурную красоту виллы и пышный ландшафт, создавая очаровательную атмосферу для вечерних посиделок или романтических моментов у бассейна.
Эта роскошная вилла с 6 спальнями в Пейе — не просто резиденция; это образ жизни. Благодаря каскадному бассейну, панорамным видам и изысканному дизайну он предлагает вершину средиземноморской жизни, где каждый день ощущается как отпуск в раю.