
740 000 €
740 000 €
| Цена продажи | 740 000 € |
| Площадь дома | 180 м² |
| Площадь участка | 317 м² |
| Всего комнат | 4 |
| Количество спален | 3 |
| Количество ванных | 3 |
| Стадия строительства | Строящийся объект |
| Объект можно сдавать в аренду |
| Адрес | Кипр, Пафос |
| Расположение | у моря, в большом городе |
| До пляжа | 650 м |
| Дополнительные расходы по сделке | |
|---|---|
| Не включены в стоимость продажи |
| Условия кредитования | |
|---|---|
| Возможна рассрочка платежа |
Вилла у песчаного Пляжа Венус и Англ Школы Эспаер в Като Пафосе. ПМЖ по ускоренной схеме, Рассрочка платежей, Возможна оплата криптовалютой.
Эталон роскоши и современного дизайна.
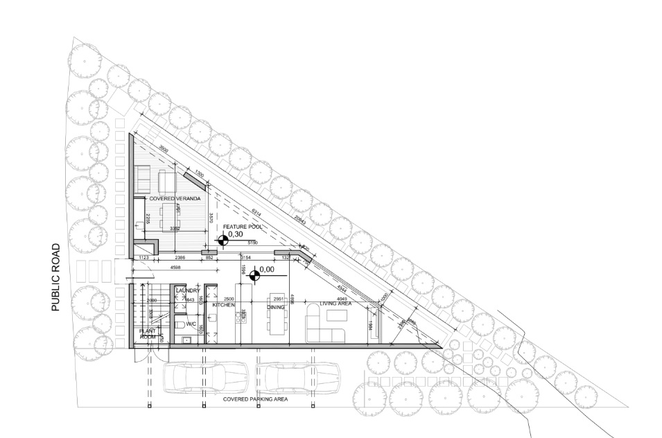
Представляем The House — впечатляющую роскошную виллу с тремя спальнями, расположенную в престижном районе Tombs of the Kings. Благодаря своей узнаваемой треугольной архитектуре и продуманным техническим характеристикам эта резиденция задает новый уровень комфортного прибрежного проживания.
Вилла выделяется просторными открытыми интерьерами и выразительными геометрическими формами, сочетая архитектурную оригинальность с функциональностью. Удачное расположение обеспечивает шаговую доступность до магазинов, ресторанов, частных школ и популярного пляжа Venus Beach, создавая гармонию удобства и элегантности.
На первом уровне расположен просторный салон, объединенный с обеденной зоной, современная кухня, гостевой санузел и отдельная хозяйственная комната. Особое внимание привлекает стильный бассейн, который начинается у крытой веранды и плавно визуально соединяется с внутренним пространством, усиливая ощущение единого жилого пространства.
На втором уровне находятся две просторные спальни с общей ванной комнатой, а также мастер-спальня с собственным санузлом. Высокие потолки, увеличенные дверные проемы и качественные отделочные материалы создают атмосферу пространства и уюта.
Благодаря уникальному дизайну, высокому уровню исполнения и отличному расположению The House является не просто домом, а настоящим архитектурным произведением, объединяющим природную красоту, современный стиль и премиальный комфорт.
Характеристики недвижимости
Район: Tombs of the Kings
Внутренняя площадь: 154 кв. м
Спальни: 3
Площадь участка: 317 кв. м
Паркинг: 2 места
Класс энергоэффективности: A
Расстояние до пляжа: 650 м
Фотовольтаическая система: 5,2 кВт
Отопление: теплые полы
Охлаждение: система VRV
Дополнительные особенности
Потолки 3,1 м
Высокие двери 2,4 м
Парковка на два автомобиля
Электрические ворота
Зона барбекю на уровне кухни, удобная для приема гостей
Теплоизоляция 8 см (пенополистирол)
Энергоэффективные алюминиевые окна и двери Slimline
Класс энергоэффективности A+
Солнечная система 4,8 кВт
Проводка для зарядки электромобиля
Водяные теплые полы с раздельными зонами на каждом этаже
Система охлаждения VRV
Толщина стен 20–25 см плюс 8 см теплоизоляции
Цена от + НДС
Локация на карте приблизительная
Специалисты лицензированного агентства недвижимости на Кипре
ABC CYPRUS Homes организуют для Вас просмотр этого объекта или подберут другие варианты по заданным критериям поиска.
Сотрудничаем с ведущими независимыми юристами Кипра, специализирующихся в сделках по недвижимости и иммиграционным вопросам
Мы на мессенджерах по телефону + 357 99 300 838