
49 000 €
49 000 €
| Цена продажи | 49 000 € |
| Площадь дома | 169 м² |
| Площадь участка | 1 100 м² |
| Этажность | 2 |
| Всего комнат | 6 |
| Количество спален | 3 |
| Стадия строительства | Вторичная недвижимость |
| Год постройки | 1961 |
| Адрес | Финляндия, Руоколахти, Похьяланкила |
| До продовольственных магазинов | 25 км |
| Дополнительные расходы по сделке | |
|---|---|
| Не включены в стоимость продажи |
| Содержание | |
|---|---|
| Ежегодный налог | 202 € |
2-этажный 6-комн. дом, сауна и хоз.строение
Дом на хуторе в 25 км от центра Руоколахти
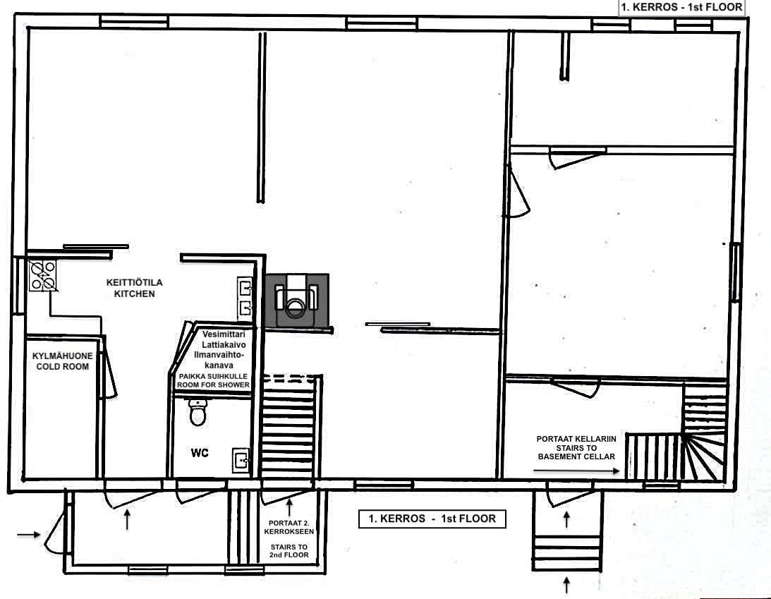
2-этажный 6-комнатный дом (площадь ок. 140 кв.м / 169 кв.м + чердак около 40 кв.м.) построен в 1961 году на собственном участке 1100 кв.м, в сельской местности, в районе Похьяланкила (Pohjalankila) в 40 км от Иматра на север.
Описание дома:
• 1-й этаж (ок. 95 кв.м): 4-5 комнат (в гостиной печь) + кухня + холодильная комната + туалет + комната для душа (есть канализация, вентиляция и водопровод, необходим монтаж душа);
• 2-й этаж (ок. 45 кв.м): 2 спальни + холл (или 1 спальня + кухня + холл);
• Чердак / складское помещение (около 40 кв.м);
• Подвал, без отделки (24 кв.м).
В доме есть электричество, центральное отопление, водопровод, канализация, договорр подключения к электричеству.
Крыша дома и дымоход печи обновлены в 2016 году.
В 2018 году были заменены водопроводные трубы и полностью отремонтирован туалет.
На участке также находятся:
• Строение с сауной, крыша сауны обновлена в 2011 году, наружная отделка фасада сауны обновлена в 2017 году.
• 2-этажное хоз.строение 1961 года постройки, крыша строения обновлена в 2016 году, наружная отделка фасада хоз.строения обновлена в 2017 году.
Описание хоз.строения:
• 1 этаж (площадь 98 кв.м): большое складское помещение, сарай для дров, утепленная гостевая комната 12,5 кв.м (2014 г. постройки), терраса 28 кв.м (2014 г. постройки);
• 2 этаж: складское помещение