
44 688 €
44 688 €
| Цена продажи | 44 688 € |
| Цена за кв.м. | 1 330 € |
| Площадь | 33.6 м² |
| Этаж | 11 |
| Этажность | 12 |
| Всего комнат | 1 |
| Количество спален | 1 |
| Количество ванных | 1 |
| Стадия строительства | Строящийся объект |
| Срок сдачи | 2028 |
| Адрес | Грузия, Батуми, Сулаберидзе 84 |
| Расположение | у моря, в большом городе |
| Тип | Однокомнатная квартира |
| Дополнительные расходы по сделке | |
|---|---|
| Не включены в стоимость продажи |
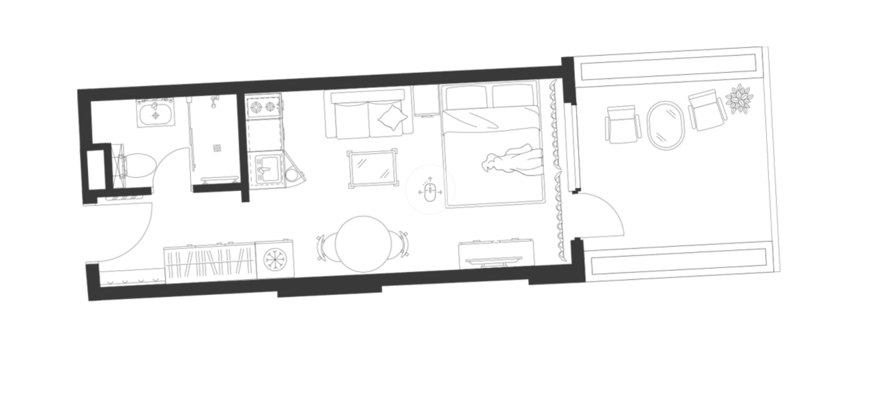
Продаеться студия, 33.6 м² в жилом комплексе комфорт-класса Silver Point, Батуми
Идеальный выбор для жизни у моря или сдачи в аренду . Расположенный в 15 минутах от набережной и Старого города, здесь встречаются горы и море, а городская инфраструктура сочетается с тишиной природы.
Планировка:
• Прихожая со встроенным шкафом;
• Кухонная зона;
• Ванная комната с душевой;
• Балкон.
Инфраструктура комплекса: подземный и наземный паркинг, закрытая территория с видеонаблюдением, зона отдыха и лаундж на эксплуатируемой крыше, коммерческие помещения, кафе и магазины на первом этаже.
Квартира продаеться без отделки. У застройщика можно купить полноценную отделку, ремонт
Срок сдачи третий квартал 2028 г
Возможна рассрочка:
Первоначальный взнос, рассрочка на 29 месяцев и последний платеж