
2 400 000 €
2 400 000 €
| Дополнительные расходы по сделке | |
|---|---|
| Не включены в стоимость продажи | |
| Комиссионный сбор | 7.14 % |
| Налог при покупке | 6 % |
| Нотариальные услуги | 1 % |
| Прочие расходы | 0.5 % |
Земельный участок с проектом в Берлине
Вашему вниманию представлен земельный участок с проектом строительства в г.Берлин, в районе Панков.
Разрешение на строительство получено.
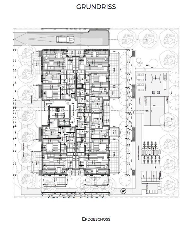
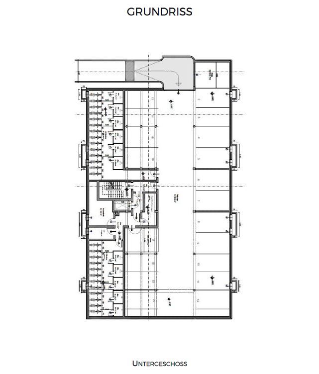
Проектом предусмотрено строительство жилого дома общей площадью около 2 224 кв.м., на 20 жилых единиц и 20 подземных парковочных мест, на участке площадью около 1 560,00 кв.м.
Стоимость — 2 400 000 Евро
Площадь земельного участка — около 1 560 кв.м.
Запланированная строительная площадь — 2 224 кв.м.
Количество квартир — 20
Подземных мест парковки — 20
Район Вильгельмсру в Панкове, первоначально пригород вилл, теперь представляет собой привлекательный зеленый микрорайон между районами Панков и Райникендорф. Уличные деревья, сады и небольшие магазины характеризуют образ этой идиллической части города. Исторические загородные дома и виллы, некоторые из которых сохранились до наших дней, были построены в основном в конце 19-начале 20 века.
В непосредственной близости находятся многочисленные возможности для отдыха, в том числе Вильгельмсруерское озеро, общественный парк Шёнхольцер-Хайде, Бюргерпарк, Шлосспарк и летний бассейн Панков.
Государственные и частные детские сады, школы и врачи находятся в шаговой доступности. Магазины для повседневных нужд можно найти на пересечении главной улицы.
Хотя Вильгельмсру находится в очень зеленом месте, транспортное сообщение здесь отличное. Поездка на велосипеде через парки и сады до берлинского центра займет всего полчаса. Столько же займут и езда на машине или общественном транспорте. Станция городской электрички Wilhelmsruh находится всего в 1 км. Автобусная остановка находится прямо у дома.
В случае заинтересованности в этом и других объектах Вы можете оставить заявку. Сотрудники нашей компании свяжутся с Вами в ближайшее время и предоставят Вашему вниманию объекты, соответствующие Вашему запросу.
Не упустите возможность приобрести земельный участок в Берлине!