
700 000 €
700 000 €
| Цена продажи | 700 000 € |
| Площадь участка | 800 м² |
| под жилую застройку |
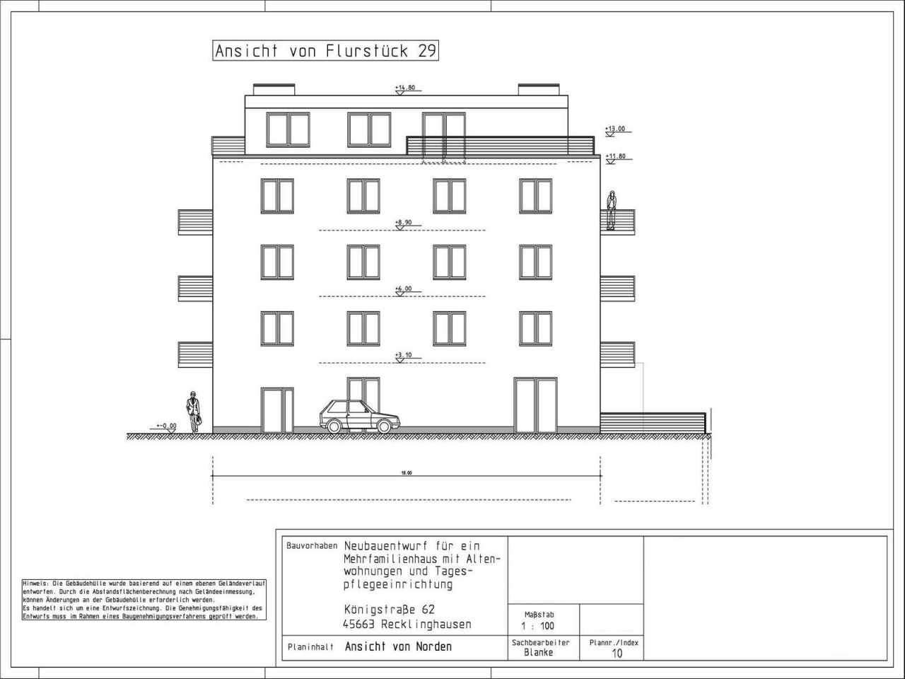
| Адрес | Германия, Реклингхаузен, Königstraße 62 |
Земельный участок с проектом строительства.
Предлагаем на продажу просторный земельный участок в популярном городе Рекклингхаузен, земля Северный Рейн-Вестфалия. Площадь участка составляет 800 кв.м. и полностью подключена к коммунальным сетям.
Согласно проекту строительства, здесь будет построен арендный дом для пожилых людей с 19 квартирами площадью 55 кв.м., с подвалом и подземной автостоянкой, и общей арендной площадью около 1 313 кв.м.
Старый дом снесли в мае 2021 года и подготовили строительную площадку к строительству.
Район характеризуется хорошей инфраструктурой. Рядом вы найдете все важные объекты повседневного пользования, а также школы и детские сады.
Площадь участка — 800 кв.м.
Арендная площадь — примерно 1 313 кв.м.
Количество квартир — 19
Стоимость — 700 000 евро
Комиссия — 3,57%
Участок находится в тихом жилом районе недалеко от центра города, в городе Рекклингхаузен в земле Северный Рейн-Вестфалия. Рекклингхаузен расположен в Рурской области и с населением около 115 000 человек является крупнейшим городом округа.
Рекклингхаузен — оживленный город с широким спектром культурных предложений. Город особенно известен своим ежегодным Рурским фестивалем, одним из старейших театральных фестивалей в Европе. Исторический старый город с его многочисленными фахверковыми домами и уютными ресторанами.
В непосредственной близости находятся магазины, школы, детские сады и остановки общественного транспорта. Соединение с сетью автомагистралей также хорошее, а это означает, что можно быстро добраться до близлежащих городов, таких как Эссен, Дортмунд и Бохум.
Для любителей природы Рекклингхаузен предлагает множество зеленых насаждений и парков, таких как городской парк или водохранилище Хальтерн, которое идеально подходит для прогулок или поездок на велосипеде.
В целом Рекклингхаузен предлагает хорошее качество жизни и поэтому является привлекательным местом для покупателей недвижимости.
Не упустите возможность приобрести проект на строительство жилого дома в Северном Рейн-Вестфалии!
В случае заинтересованности в этом и других объектах Вы можете оставить заявку. Сотрудники нашей компании свяжутся с Вами в ближайшее время и предоставят Вашему вниманию объекты, соответствующие Вашему запросу.
Хотите продать свою недвижимость в Германии? Отлично! Пришлите нам данные о вашей недвижимости, и мы поможем Вам её продать!