
75 000 €
75 000 €
| Цена продажи | 75 000 € |
| Площадь дома | 237 м² |
| Площадь участка | 250 м² |
| Этажность | 4 |
| Всего комнат | 24 |
| Стадия строительства | Вторичная недвижимость |
| Год постройки | 1900 |
| Адрес | Германия, Альтенбург, Offenburger Allee 38, 04600 Altenburg |
| Дополнительные расходы по сделке | |
|---|---|
| Не включены в стоимость продажи | |
| Налог при покупке | 5 % |
| Нотариальные услуги | 1 % |
| Прочие расходы | 0.5 % |
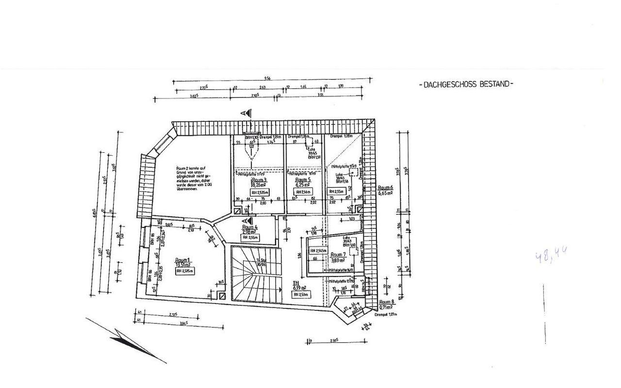
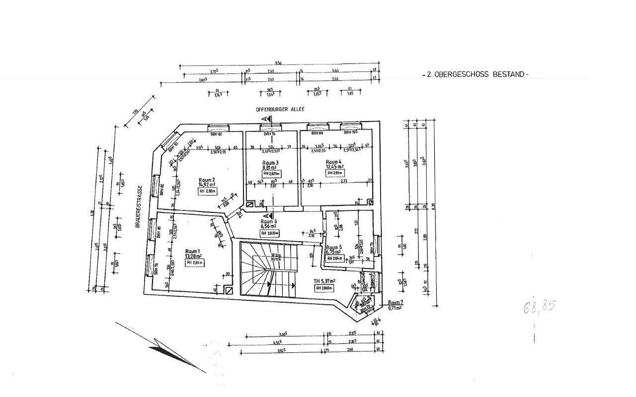
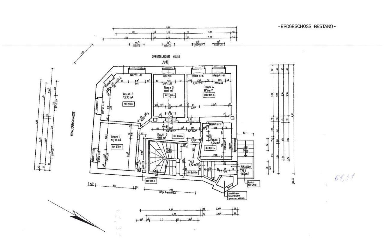
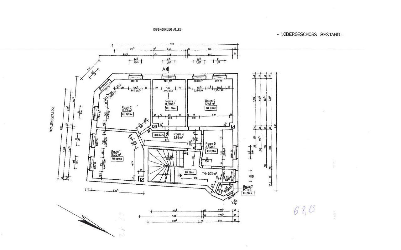
Жилой дом под санацию в Альтенбург
Предлагаем на продажу жилой дом, нуждающийся в полной реконструкции, расположенный в городе Альтенбург, земля Тюрингия.
Дом был построен примерно в 1900 году на участке площадью 250 квадратных метров и имеет прихожую, три этажа, чердак и подвал. Не является памятником архитектуры.
Дом нуждается в полной реконструкции. Все подключения газа, воды и электричества уже отключены, а трубы в доме демонтированы.
Площадь участка — около 250 кв.м.
Арендная площадь — примерно 237 кв.м.
Количество комнат — 24
Стоимость — 75 000 евро
Комиссия — 0,0%
Альтенбург — город на востоке в земле Тюрингия, расположенный примерно в 40 км к югу от Лейпцига. Город известен своим историческим замком, который является одним из крупнейших замковых комплексов Германии и ежегодно привлекает многочисленных посетителей.
Ситуация с недвижимостью в Альтенбурге характеризуется сочетанием исторических зданий и современных новостроек.
Инфраструктура в Альтенбурге хорошо развита. В городе есть несколько школ, детских садов, магазинов и врачей. Транспортное сообщение также хорошее, как на автомобиле по автомагистралям А4 и А72, так и на общественном транспорте.
В Альтенбурге регулярно проходят такие мероприятия, как популярный фестиваль картофеля, фестиваль вина или турнир по Альтенбургскому Скату, которые обогащают культурную жизнь города. Близость к Лейпцигу также предлагает множество возможностей для экскурсий и культурных мероприятий.
В целом, Альтенбург предлагает привлекательный жилой район для семей, пар и одиноких людей, которые ищут тишины и природы, но при этом не хотят упускать преимущества маленького городка.
Не упустите возможность приобрести этот дом в Тюрингии!
В случае заинтересованности в этом и других объектах Вы можете оставить заявку. Сотрудники нашей компании свяжутся с Вами в ближайшее время и предоставят Вашему вниманию объекты, соответствующие Вашему запросу.
Хотите продать свою недвижимость в Германии? Отлично! Пришлите нам данные о вашей недвижимости, и мы поможем Вам её продать!