
419 750 €
419 750 €
| Цена продажи | 419 750 € |
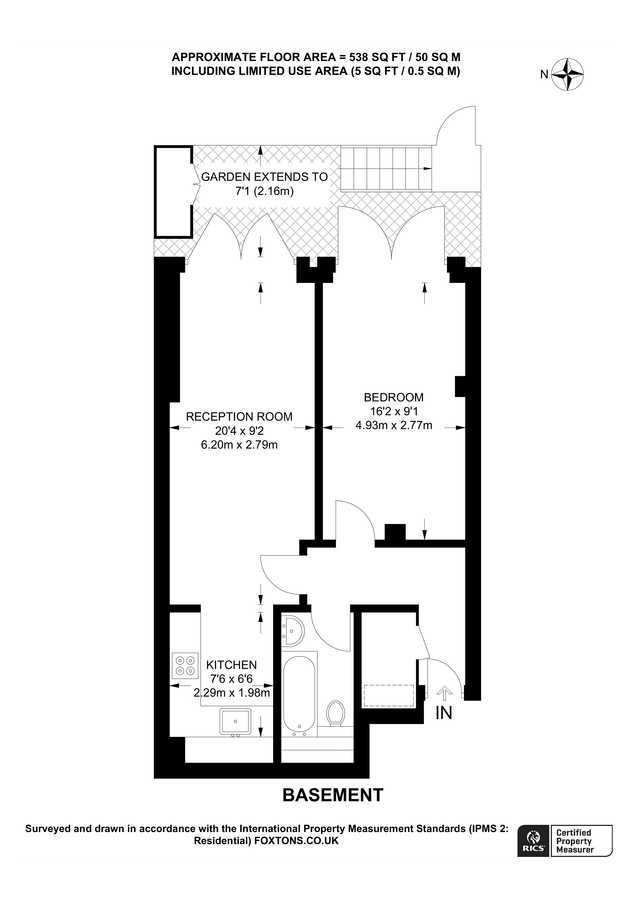
| Цена за кв.м. | 8 395 € |
| Площадь | 50 м² |
| Всего комнат | 3 |
| Количество спален | 1 |
| Количество ванных | 1 |
| Адрес | Великобритания, Лондон |
| Тип | Трёхкомнатная квартира |
1 bed, 1 bath, 1 reception, 538 sq. ft
Эта потрясающая квартира с одной спальней гордится своим фантастическим расположением и предлагает современные, современные интерьеры, просторную жилую площадь и прекрасный частный патио.
На улице Stoke Newington Road представлено множество местных удобств, а очаровательные магазины, кафе и бутики улицы Church Street находятся поблизости. Для более широкого ассортимента удобств легко добраться до Islington и Hackney. ️