
350 000 €
350 000 €
| Цена продажи | 350 000 € |
| Цена за кв.м. | 6 862.75 € |
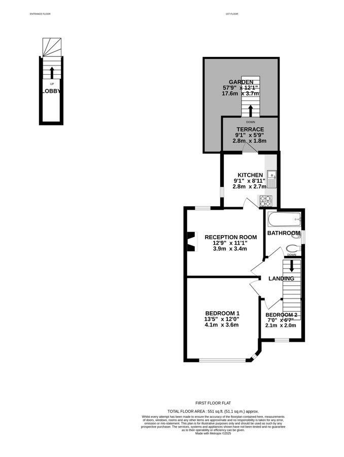
| Площадь | 51 м² |
| Всего комнат | 3 |
| Количество спален | 2 |
| Количество ванных | 1 |
| Адрес | Великобритания, Лондон |
| Тип | Трёхкомнатная квартира |
2 beds, 1 bath
Этот хорошо оформленный отдельный верхний этаж в конце террасы находится на тихой жилой улице и сочетает в себе свет, пространство и характер в продуманной планировке. Частный вход ведет к светлым интерьерам, включая просторную двойную спальню с эркером, вторую спальню, отдельную кухню и современную ванную комнату.
Сзади терраса на крыше предлагает спокойное пространство с открытыми видами . Квартира также обладает исключительным правом использования частного сада позади дома, что дает редкое сочетание открытых пространств в этой местности .
Расположение хорошо связано: недалеко находятся магазины, зеленые зоны и отличные транспортные маршруты, включая станции Willesden Junction и Harlesden.