
258 750 €
258 750 €
| Цена продажи | 258 750 € |
| Цена за кв.м. | 8 625 € |
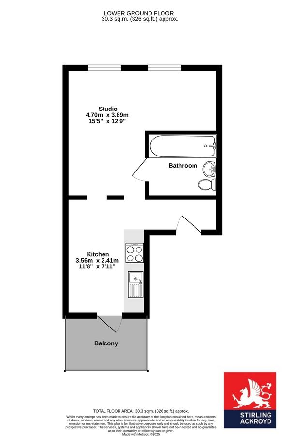
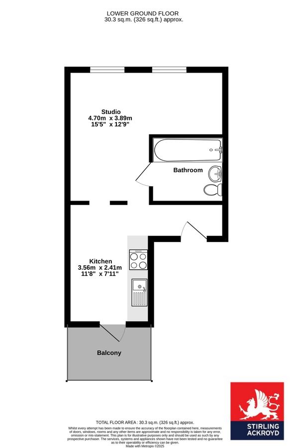
| Площадь | 30 м² |
| Всего комнат | 3 |
| Количество спален | 1 |
| Количество ванных | 1 |
| Адрес | Великобритания, Лондон |
| Тип | Трёхкомнатная квартира |
1 bed, 1 bath, 1 reception, EPC Rating: D
Эта квартира находится на цокольном этаже и имеет частный внутренний дворик на Bermondsey Square, рядом с Bermondsey Street. Всего в нескольких минутах ходьбы находятся London Bridge, More London, река Темза, рынок Borough Market и центр города.
Отличительные особенности: полуоткрытая кухня с выходом на дворик, двойные стекла в окнах с раздвижными створками, газовое центральное отопление и светлая L-образная гостиная, переходящая в спальную зону.
Локация великолепна — все удобства рядом, множество высококлассных ресторанов, таких как Jose's Tapas bar, Pizarro restaurant, Café Murano Ангелы Хартнетт, Casse-Croute и Baccala. Магазины и бутики вокруг Borough Market и London Bridge, множество достопримечательностей в шаговой доступности.