
937 250 €
937 250 €
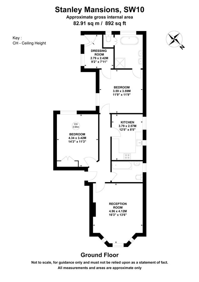
| Цена продажи | 937 250 € |
| Цена за кв.м. | 11 292.17 € |
| Площадь | 83 м² |
| Всего комнат | 5 |
| Количество спален | 2 |
| Количество ванных | 2 |
2 beds, 2 baths, 1 reception, EPC Rating: D
Фантастическая возможность для обновления – эта просторная квартира с двумя спальнями на первом этаже в Stanley Mansions предлагает огромный потенциал. Недвижимость требует модернизации, и это идеальный выбор для тех, кто хочет обновить и добавить ценность. ️
Пропорциональные комнаты и желательное расположение в популярном блоке делают это приобретение отличным выбором как для конечных пользователей, так и для инвесторов.
Stanley Mansion, Park Walk расположен примерно в 460 метрах от King's Road (Beaufort Street) и в 452 метрах от Fulham Road / Beaufort Street, где находятся местные магазины, кафе и услуги.
Недалеко находятся станции метро Gloucester Road (линии Circle, District и Piccadilly) в 1.1 км и South Kensington (линии Circle, District и Piccadilly) в 1.3 км, а также Sloane Square в 2.1 км.