
431 250 €
431 250 €
| Цена продажи | 431 250 € |
| Цена за кв.м. | 8 293.27 € |
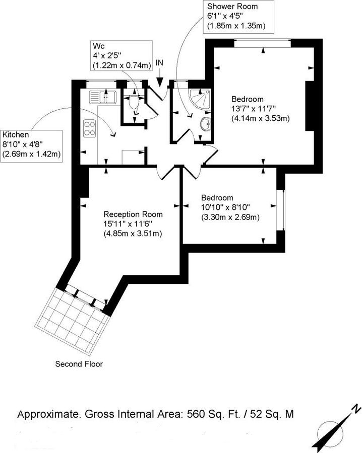
| Площадь | 52 м² |
| Всего комнат | 4 |
| Количество спален | 2 |
| Количество ванных | 1 |
2 beds, 1 bath, 1 reception, EPC Rating: C
Эта квартира на втором этаже в Mawbey House предлагает хорошо спланированное жильё площадью примерно 560 квадратных футов, что делает её идеальным выбором для первого приобретения или инвестиций.
Недвижимость включает в себя светлую гостиную с выходом на частный балкон, отдельную оборудованную кухню, две спальни, включая просторную главную спальню, душевую комнату и дополнительный туалет. Планировка практична и хорошо сбалансирована, с хорошим естественным освещением.
Mawbey House расположено вдоль Old Kent Road, обеспечивая легкий доступ к широкому спектру местных магазинов, супермаркетов и удобств, а также близлежащим зелёным зонам, включая Burgess Park.
Транспортная доступность обеспечивается станцией Elephant & Castle с услугами Northern и Bakerloo линий, а также связью с Национальными железными дорогами, в то время как станция South Bermondsey предлагает услуги London Overground с маршрутами к Canada Water и Clapham Junction. Несколько автобусных маршрутов по Old Kent Road также обеспечивают лёгкий доступ в Сити, Вест-Энд и прилегающие районы.