
862 500 €
862 500 €
| Цена продажи | 862 500 € |
| Цена за кв.м. | 14 375 € |
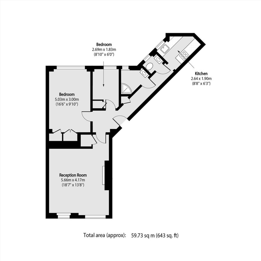
| Площадь | 60 м² |
| Всего комнат | 4 |
| Количество спален | 2 |
| Количество ванных | 1 |
2 beds, 1 bath, 1 reception
Эта восхитительная двухкомнатная квартира расположена в доме с консьержем. Окна квартиры выходят на частные общие сады дома. Благодаря расположению в самом сердце Челси, это идеальная база в Лондоне. ️
Kings Court North идеально расположен на King's Road. В пешей доступности находятся рестораны, магазины, станция метро Sloane Square и парк Battersea.