
459 942 €
459 942 €
| Цена продажи | 459 942 € |
| Цена за кв.м. | 9 998.74 € |
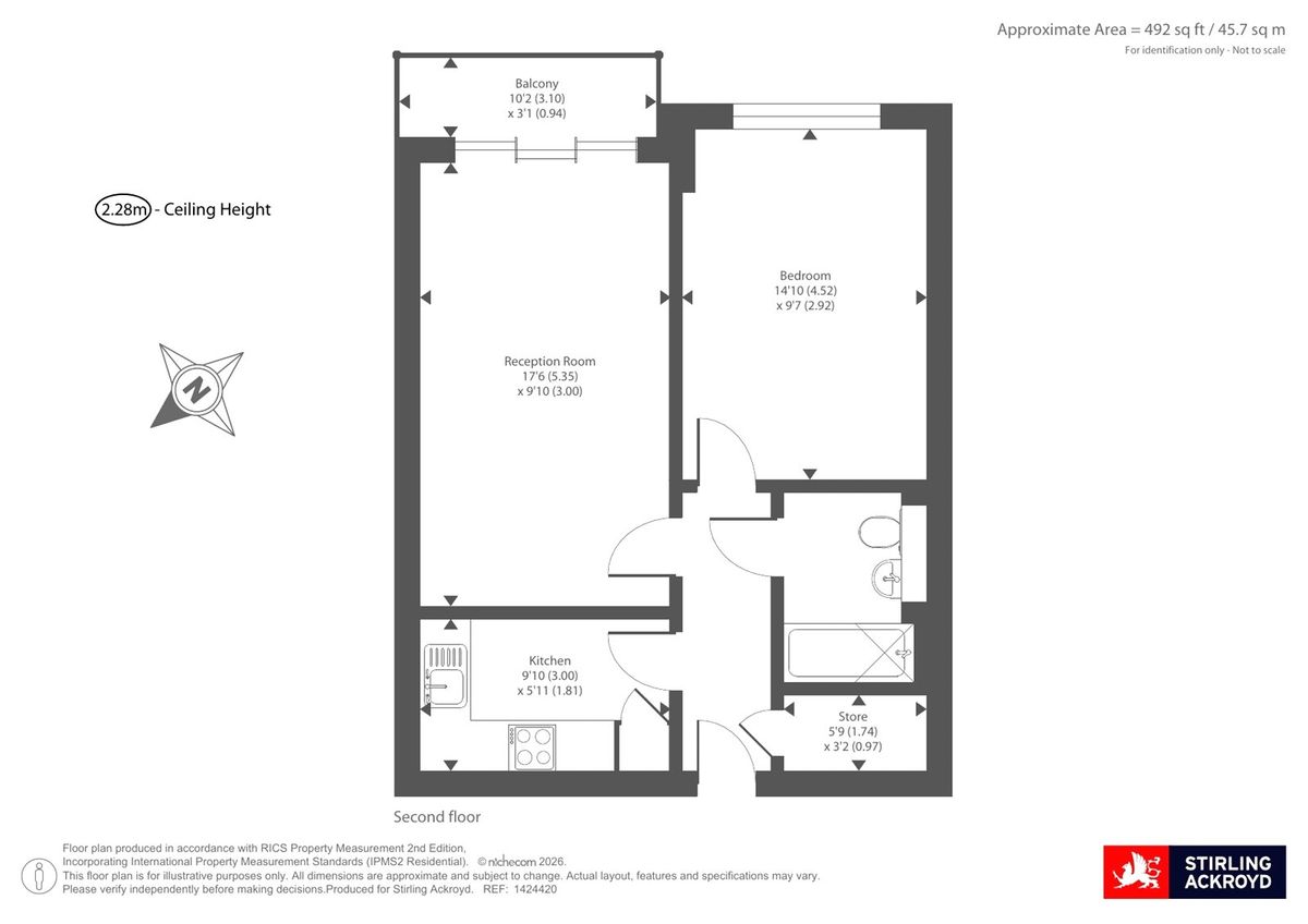
| Площадь | 46 м² |
| Всего комнат | 3 |
| Количество спален | 1 |
| Количество ванных | 1 |
| Адрес | Великобритания, Лондон |
| Тип | Трёхкомнатная квартира |
Это отличная квартира площадью 492 квадратных футов на втором этаже с одной спальней и балконом, с приблизительно 976-летним лизхолдом в популярном закрытом комплексе на Long Lane, рядом с улицей Bermondsey, станциями London Bridge и Borough.
Собственность прекрасно представлена: просторная жилая зона с окнами от пола до потолка и стеклянной дверью, ведущей на балкон, отдельная полностью оборудованная современная кухня (в некоторых квартирах комплекса кухню присоединили к гостиной), просторная спальня с двуспальной кроватью, ванная комната с белой плиткой и кладовая в коридоре.
Это место расположено в одном из самых популярных районов на юге реки как для жизни, так и для работы, предлагая всё, что можно пожелать: природные зоны, кулинарные шедевры, новые и старинные бутики, магазины, пабы , бары и галереи, наряду с множеством знаковых достопримечательностей Лондона, таких как Tower Bridge, Tower of London, The Shard, и в нескольких минутах ходьбы от Сити. ️