
460 000 €
460 000 €
| Цена продажи | 460 000 € |
| Цена за кв.м. | 9 583.33 € |
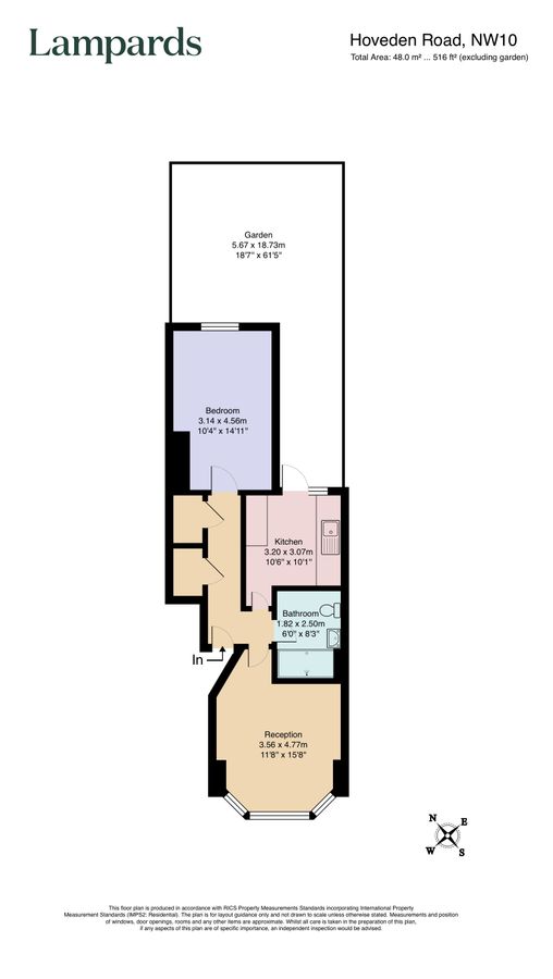
| Площадь | 48 м² |
| Всего комнат | 3 |
| Количество спален | 1 |
| Количество ванных | 1 |
| Адрес | Великобритания, Лондон |
| Тип | Трёхкомнатная квартира |
Просторная квартира на первом этаже по Hoveden Road предоставляет эксклюзивное использование частного сада и редкую возможность увеличить стоимость с течением времени. Площадь недвижимости составляет около 516 квадратных футов, и она предлагается без цепочки с новым 125-летним договором аренды, что делает её привлекательной для как для владельцев, так и для инвесторов.
Планировка практична и хорошо сбалансирована: комфортная гостиная на переднем плане, отдельная кухня, просторная двуспальная спальня и ванная комната, расположенные в коридоре. Сзади квартира выходит на большой сад, который является настоящей особенностью. Он предоставляет отличное место для развлечений, отдыха или будущего благоустройства.
Одним из ключевых преимуществ является потенциал для расширения, при условии получения обычных разрешений на строительство. Учитывая размер сада и расположение на первом этаже, существует очевидная возможность для улучшения, что позволит создать более просторный дом, соответствующий вашим потребностям.
Недвижимость расположена в районе Mapesbury, который известен своими широкими зелеными улицами и привлекательными зданиями периода. Здесь царит спокойная атмосфера благодаря соседству, несмотря на хорошую транспортную доступность. Транспортные связи находятся в легкой досягаемости, обеспечивая удобный доступ к центру Лондона и далее, рядом также имеется хороший выбор местных магазинов, кафе и зеленых зон.