
734 000 €
734 000 €
Продажа Таунхаус 133 m² в Афинах
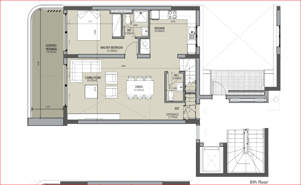
Продается таунхаус площадью 133 кв.м в Афинах на стадии строительства. Таyнхаус расположен на 2 уровнях. Седьмой этаж состоит из одной спальной комнаты, гостиной, одной кухни, одной душевой комнаты, одного санузла.
Восьмой этаж состоит из 2 спальных комнат, гостиной, одной душевой комнаты.
Из окон открывается великолепный вид на море, на город. У объекта есть солнечные батареи для нагрева воды, тенты, отопление. В здании расположен лифт. К недвижимости относится парковочное место. В распоряжении владельцев общий бассейн на территории.
Жилой комплекс в Палео Фалиро,
ворота в Афинскую Ривьеру
7 уровней
21 резиденция нового поколения
Апартаменты и дуплексы с 2–3 спальнями
Общие помещения
бассейн на крыше
с видом на море
зона для барбекю на крыше
терраса на крыше
Частные зоны
парковка
зона хранения
4 квартиры на 2 этаже
4 квартиры на 3 этаже
4 квартиры на 3 этаже
1 квартира и 3 дуплекса на 4/5 этажах
пол
1 квартира на 5 этаже
4 дуплекса на 6/7 этажах
Палео Фалиро, ворота в Афины
Ривьера
рестораны и кафе на живописной набережной в
Флисвос Марина
набережная с пальмами, игровые парки, кинотеатр под открытым небом и
роскошная пристань для яхт создает круглогодичную курортную атмосферу
рядом с меняющим правила игры Фондом культуры Ставроса Ниархоса
Центр, развлекательный центр для всех возрастов и произведение искусства
спроектирован известным итальянским архитектором Ренцо Пиано.
Квартира расположена в районе Палео Фалиро.
Дата поставки Январь 2026 г.