
1 250 000 €
1 250 000 €
Продажа Вилла 182 m² на Кассандре (Халкидики)
Продается 2-этажная вилла площадью 182 кв.м на полуострове Кассандра, региона Халкидики на стадии строительства. Первый этаж состоит из гостиной, одной кухни, одного санузла.
Второй этаж состоит из 3 спальных комнат, 3 душевых комнат.
Вилла имеет угловое расположение. Из окон открывается великолепный вид на море, на горы, на лес. У объекта есть солнечные батареи для нагрева воды, камин, кондиционер, тенты, зона барбекю, отопление. У объекта установлена сигнализация. К недвижимости относится парковочное место, сад, гараж. На территории расположен бассейн личного пользования.
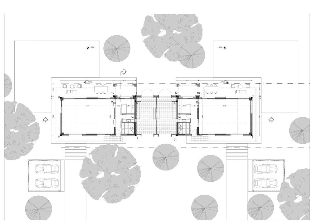
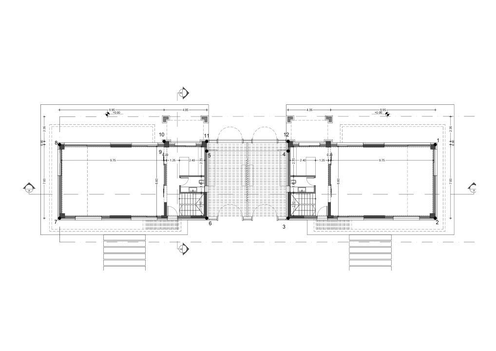
Продаются две автономные-роскошные виллы на участке 5,000 кв.м. в Сани, Халкидики, которые находятся на стадии строительства. Каждая вилла имеет площадь 182 кв.м. и разделена на 2 уровня: первый этаж 100 кв.м. и второй этаж 82 кв.м.
Каждая вилла состоит из гостиной, кухни, 3 спален, 4 ванных комнат и кладовой.
На внешней территории каждой виллы есть бассейн 50 кв.м., террасы первого этажа 180 кв.м., террасы второго этажа 42 кв.м., полуоткрытая зона второго этажа 20 кв.м., биоклиматическая пергола с зоной для барбекю 27 кв.м., парковочные места для 2 автомобилей 36 кв.м. и собственный участок 2,500 кв.м.
Расположение идеально для отдыха и беззаботного отпуска. Виллы расположены в природной и спокойной обстановке среди озер и сосновых лесов, с видом на море, озера и гору Олимп.
Каждая биоклиматическая вилла построена из высококачественных европейских материалов. Они имеют нулевое энергопотребление и оснащены внешней теплоизоляцией, автономным напольным отоплением и горячей водой с тепловым насосом в сочетании с солнечной системой, охлаждением и обогревом с VRV (кондиционирование), энергоэффективным камином, алюминиевыми наружными рамами от компании Alumil, пуленепробиваемыми стеклами, сетками, бронированной входной дверью, камерами видеонаблюдения, сигнализацией, спутниковой антенной, системой "умный дом", итальянской и испанской плиткой высшего сорта, мраморными лестницами, кухонной мебелью на выбор (акрил или ламинат), массивными внутренними дверями с алюминиевыми рамами, перилами террас из триплекс-стекла. Также имеется установка для воздухообменника в внутренних помещениях, установка для джакузи и установка для 36 кв.м. фотоэлектрических панелей.
Освещение спроектировано профессиональными архитекторами, чтобы украсить и подчеркнуть эти современные резиденции.
В ванных комнатах встроенные краны для ванны и раковины, встроенные бачки, душевые кабины с триплекс-стеклом, раковины по вашему выбору (кореан или фарфор).
Полуоткрытая многофункциональная зона позволяет создать спортзал с различными удобствами, такими как джакузи. Эта зона уникальна, так как предлагает великолепный вид на море и озера.
На внешней территории есть биоклиматическая пергола с регулируемым освещением (управление с пульта), зона для барбекю с уличной обеденной зоной, рабочей поверхностью и раковиной. Сад спроектирован архитектором, чтобы быть устойчивым, подчеркивая экологичность и экологичность. Включает различные типы деревьев, растений, кустарников, газон, рокарии, освещение и систему орошения с автоматическим поливом. Главные ворота входа ограждения автоматические.
Цена продажи: 1,250,000 евро за виллу Сдача резиденции: декабрь 2024