
1 266 009 €
1 266 009 €
| Цена продажи | 1 266 009 € |
| Цена за кв.м. | 10 728.89 € |
| Площадь | 118 м² |
| Этаж | 5 |
| Количество спален | 3 |
| Количество ванных | 2 |
| Адрес | Люксембург, Люксембург |
surface: 118 m², rooms: 3, bathrooms: 2, garages: 1.
Жилой комплекс Nest в Бельвале — это современный и экологичный проект, предлагающий 64 жилые единицы в самом сердце Бельвала. Завершение строительства запланировано на конец 2028 года.
Здание класса AAA будет оснащено высокоэффективными оконными рамами и стеклопакетами, новой генерацией крыши с солнечными панелями, городской фермой и системой сбора дождевой воды.
Апартаменты Nest выделяются тщательной отделкой: по выбору плитка или паркет, окрашенные стены Variovlies, двери высокого качества и ванные комнаты с сантехникой премиум-класса от Duravit, Villeroy & Boch и Hansgrohe. Комфорт усиливается за счет теплого пола и системы приточно-вытяжной вентиляции, создающей здоровую и приятную атмосферу.
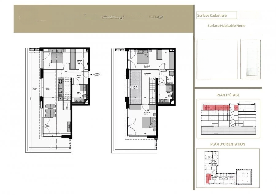
Двухуровневый лот 5.05.DU3 находится на 6 и 7 этажах и предлагает кадастровую площадь ±148 м² и террасу ±30 м², включающие: - Гостиная-кухня размером ±29.35 м² с большими оконными проемами и доступом на террасу через раздвижные двери. - 3 спальни площадью ±12.57 м², ±16.60 м² и ±17.54 м². - 2 душевые комнаты с туалетами по 5.83 м². - Комната для стирки/хранения площадью ±7.07 м².
Бельваль — это одно из самых инновационных и развивающихся районов в южной части страны, обеспечивающий все удобства в пределах 15-минутной пешей доступности, такие как магазины, рестораны, зеленые зоны и культурные объекты.
Скоро будет введена скоростная трамвайная линия, соединяющая Бельваль с Люксембургом, дополняя уже великолепную транспортную доступность, в том числе благодаря близости станции Belval-Université в 450 м от резиденции.
У подножия NEST появится будущая площадь Place des Bassins — оживлённое пространство с пешеходными зонами, магазинами, мероприятиями и зонами отдыха, созданное для повышения социальной активности и благополучия.
Район предлагает быстрый доступ к основным инфраструктурам: большой парк для прогулок и активного отдыха, концертный зал Rockhal, торговый центр Belval Plaza и кинотеатр Kinepolis.
В Бельвале расположены ведущие экономические и учебные учреждения, такие как Société Générale Luxembourg и университетский кампус с исследовательскими центрами, которые способствуют его устойчивому притяжению и высокой инвестиционной привлекательности.