
300 000 €
300 000 €
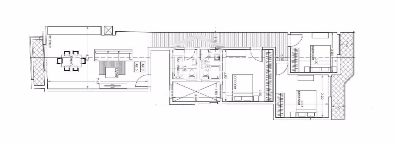
Bedrooms: 3, Bathrooms: 2, Inside Area: 95 sqm, Outside Area: 10 sqm
Новейшие квартиры на рынке в весьма ограниченном рынке Xghajra. Эти объекты имеют около 35 кв.м открытой планировки и балкон, выходящий на улицу с видами на ODZ. Далее следуют главная ванная комната, основная спальня с отдельной ванной, одна двухместная спальня, одна одноместная спальня и задний балкон.
Эти квартиры расположены в небольшом блоке из 9 единиц и, как ожидается, будут готовы к июню 2023 года. Доступны первый, второй и третий этажи по одной цене! Блок продается в завершенном виде, но без ванных комнат и дверей. Включает лифт и является собственностью.