
16 700 000 €
16 700 000 €
| Цена продажи | 16 700 000 € |
| Цена за кв.м. | 55 666.67 € |
| Площадь | 300 м² |
| Всего комнат | 4 |
| Количество ванных | 3 |
| Адрес | Монако, Монако |
| Тип | Четырехкомнатные квартиры и более |
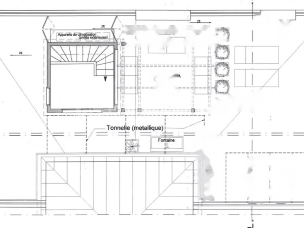
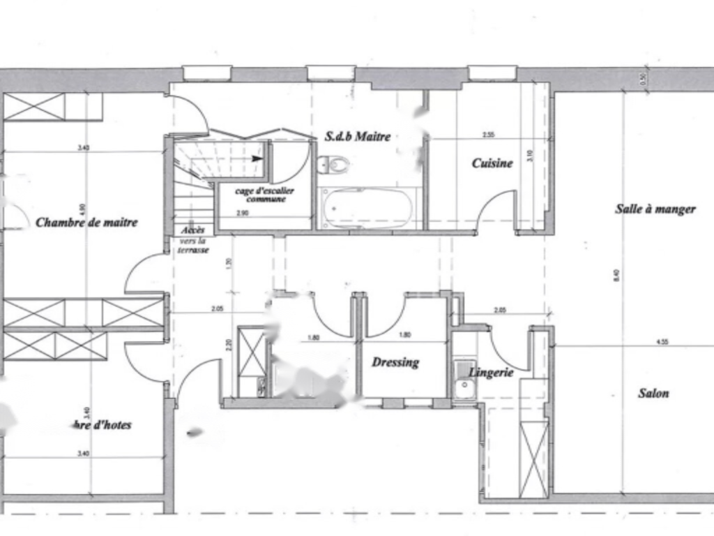
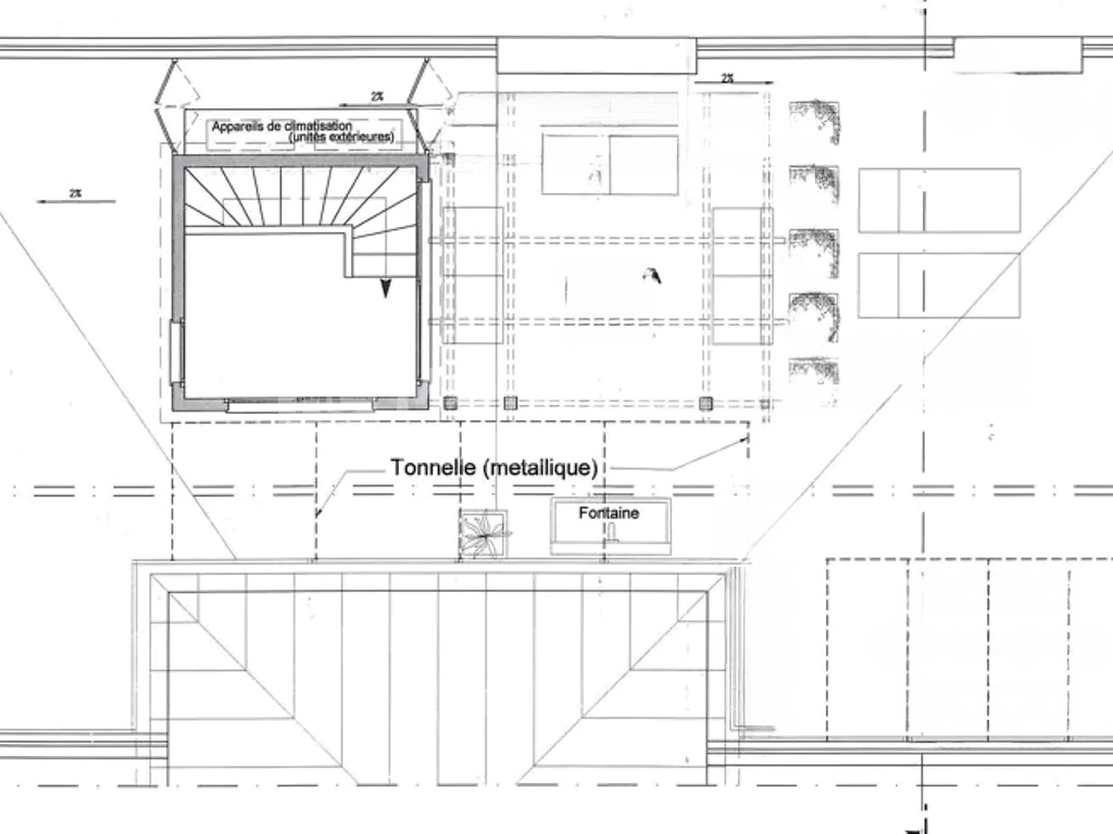
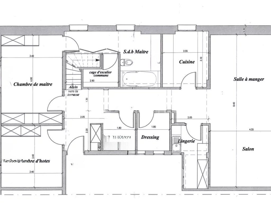
Очень редко встречающийся пентхаус с шармом в красивом буржуазном здании, полностью обновлённый известным дизайнером, с роскошными условиями. Он включает в себя прихожую с шкафом, двойную гостиную/столовую с выходом на два балкона, основную спальню с шкафами и ванной комнатой, а также вторую спальню с ванной комнатой, обе из которых выходят на заднюю террасу. Дополнительно: гардероб, прачечная, кабинет, отдельная кухня с оборудованием.
Доступ к оборудованной террасе на крыше через лестницу, где расположены внешний салон и летняя кухня, а также пергола с фонтаном. Пентхаус предоставляет панорамный вид. Также имеются подвал и парковочное место в соседнем здании. Есть разрешение на преобразование 50 м² на террасе в жилое помещение. Здание имеет два входа — один на Avenue de Grande-Bretagne, другой на Boulevard des Moulins. ️