
4 500 000 €
4 500 000 €
| Цена продажи | 4 500 000 € |
| Цена за кв.м. | 47 368.42 € |
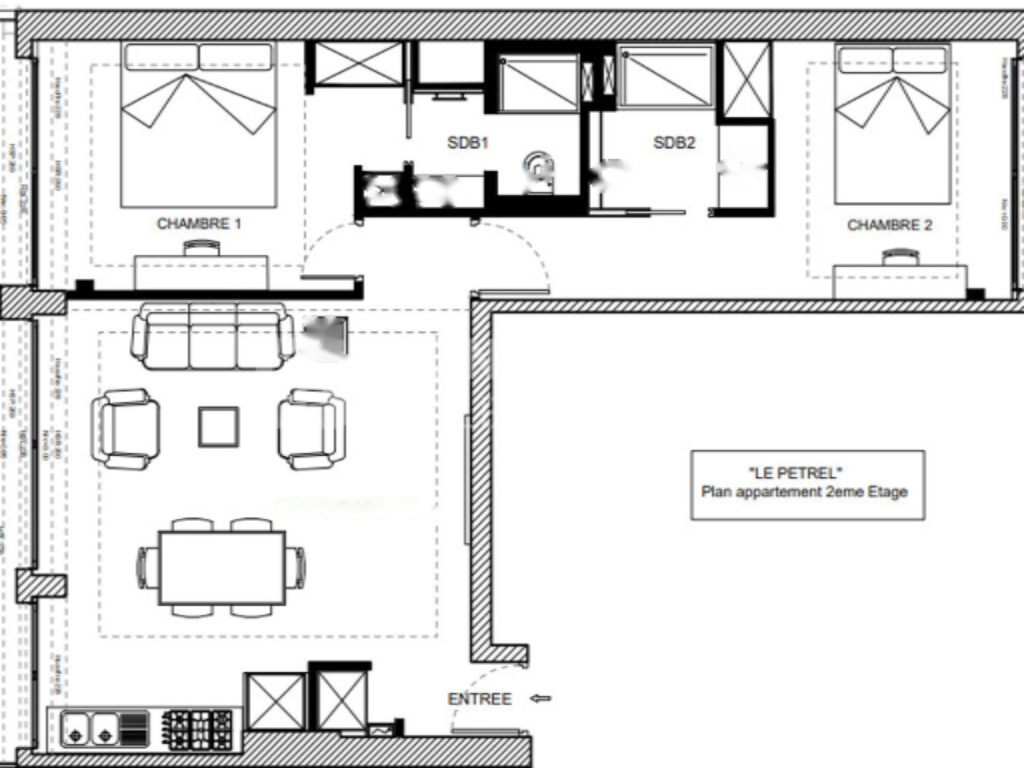
| Площадь | 95 м² |
| Этаж | 2 |
| Всего комнат | 3 |
| Количество спален | 2 |
| Количество ванных | 2 |
| Адрес | Монако, Монако |
| Тип | Трёхкомнатная квартира |
Квартира расположена в здании "Le Petrel", на втором уровне, в современном доме с лифтом. Благодаря своему расположению на единственной пешеходной улице княжества, она идеально подходит как для жилья, так и для офиса.
Просторный и светлый интерьер выполнен с изысканностью и особым вниманием к деталям. Полностью отремонтированная квартира находится всего в нескольких шагах от порта Геркулес.
Жилая зона включает в себя холл, гостиную с открытой кухней и террасой, а также две спальни и две ванные комнаты, каждая из которых также имеет выход на террасу.