
4 725 000 €
4 725 000 €
| Цена продажи | 4 725 000 € |
| Цена за кв.м. | 49 736.84 € |
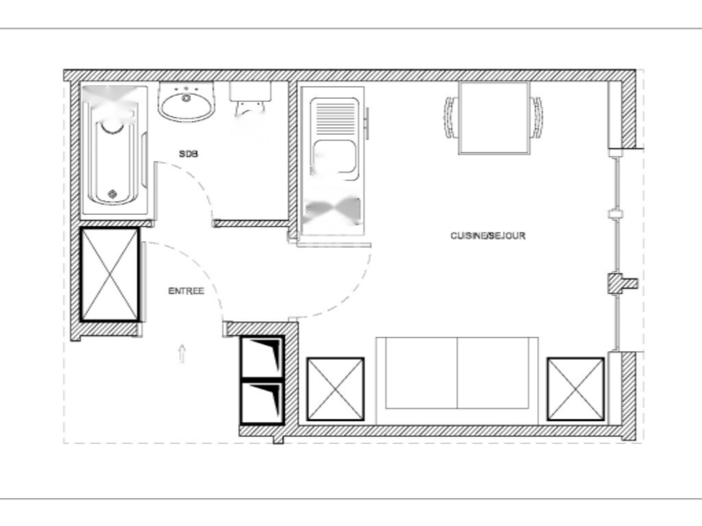
| Площадь | 95 м² |
| Этаж | 2 |
| Всего комнат | 2 |
| Количество спален | 2 |
| Количество ванных | 2 |
| Адрес | Монако, Монако |
| Тип | Двухкомнатная квартира |
Добро пожаловать в изысканные апартаменты с 3 комнатами в престижной резиденции Le Petrel. Эти апартаменты находятся на Rue Princesse Caroline, единственной пешеходной улице в Монако, на небольшой дистанции от Port Hercule. Это уникальная возможность для использования в жилых или профессиональных целях.
Апартаменты площадью 95 м² полностью отремонтированы и предлагают высокий уровень отделки. Просторный светлый салон с открытой кухонной зоной выходит на большую террасу. Две элегантные спальни, каждая со своей ванной комнатой и террасой, обеспечивают комфорт и приватность.
Вид на знаменитый Rocher, Rue Princesse Caroline и трассу Formula 1 создают неповторимую атмосферу для проживания. Эти апартаменты позволяют насладиться местом проживания в сердце Монако, сочетая современный дизайн и комфорт.