
8 350 000 €
8 350 000 €
| Цена продажи | 8 350 000 € |
| Цена за кв.м. | 57 191.78 € |
| Площадь | 146 м² |
| Этаж | 5 |
| Этажность | 11 |
| Всего комнат | 3 |
| Количество спален | 2 |
| Количество ванных | 1 |
| Адрес | Монако, Монте Карло, Le Continental |
| Расположение | у моря |
| Тип | Трёхкомнатные апартаменты |
| Дополнительные расходы по сделке | |
|---|---|
| Не включены в стоимость продажи |
| Условия кредитования | |
|---|---|
| Возможен кредит | |
| Ставка по кредиту | от 0.85 до 1.85 % |
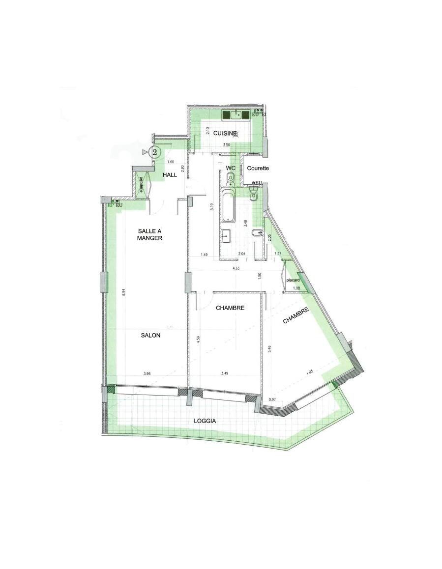
Просторные апартаменты 146 м2 в Continental
Эти апартаменты идеально расположены недалеко от главной торговой улицы Монако с ее многочисленными бутиками и всего в нескольких минутах от пляжей Ларвотто, Форума Гримальди и набережной MAreterra благодаря общественным лифтам, которые обеспечивают легкий доступ.
В квартире прекрасное естественное освещение и беспрепятственный вид на город и море. Квартира состоит из просторной прихожей со встроенным шкафом, двойной гостиной/столовой с выходом на приятную террасу спереди, большой кухни, двух больших и красивых спален с выходом на террасу, просторной ванной комнаты, гостевого туалета и большого количества места для хранения вещей.
В квартире есть кондиционер, продается с подвалом.
В элитном жилом комплексе имеется служба безопасности.
ПОДРОБНАЯ ИНФОРМАЦИЯ
Район: Monte-Carlo
Здание: Le Continental
Общая площадь: 146 м2
Жилая площадь: 124 м2
Площадь террасы: 22 м2
Этаж: 5ый
Комнат: 3
Спален: 2
Подвал: 1
Вид: Море, Город