
1 100 000 €
1 100 000 €
| Цена продажи | 1 100 000 € |
| Цена за кв.м. | 1 896.55 € |
| Площадь | 580 м² |
| Адрес | Черногория, п-ов Луштица |
Продается мини-отель в стадии
Продается мини-отель в стадии строительства на полуострове Луштица.
Вид на море.
Отель расположен на мысе Весло. Это место отличается тишиной и приватностью, здесь нет шумных трасс и не бывает большого скопления туристов. Идеальное место для приятного семейного отдыха или для тех, кто устал от шума больших городов.
На полуострове сохранилась первозданная природа этого края: густые оливковые рощи, пышные сосновые леса, уютные лазурные лагуны
В пешей доступности от отеля находится несколько пляжей. Вода в этом месте отличается чистотой и фантастическим бирюзовым оттенком. На пути к пляжу можно погулять в живописных оливковых рощах.
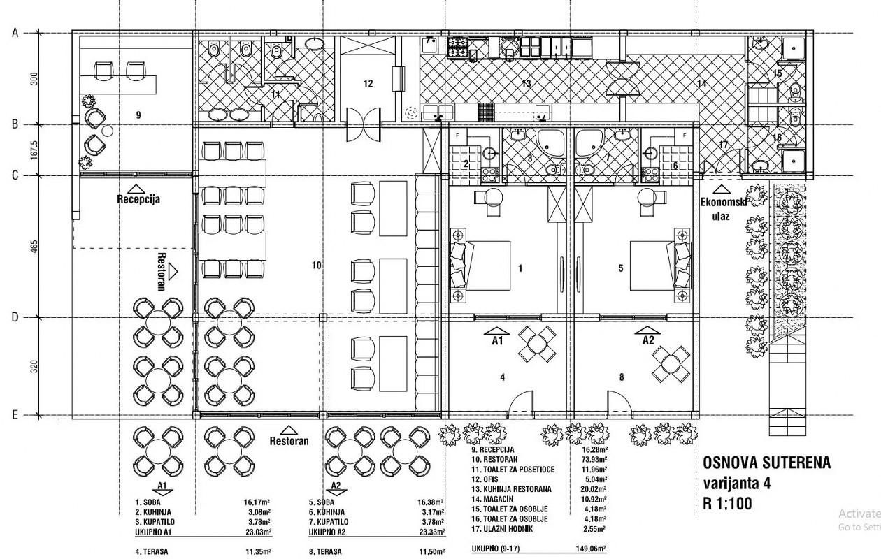
Концепт мини-отеля предполагает наличие бассейна, ресепшена, ресторана. Все это будет расположено на первом этаже здания и будет доступно для гостей отеля. Кроме того, предполагается два небольших апартамента на первом этаже, которые можно будет использовать для персонала.
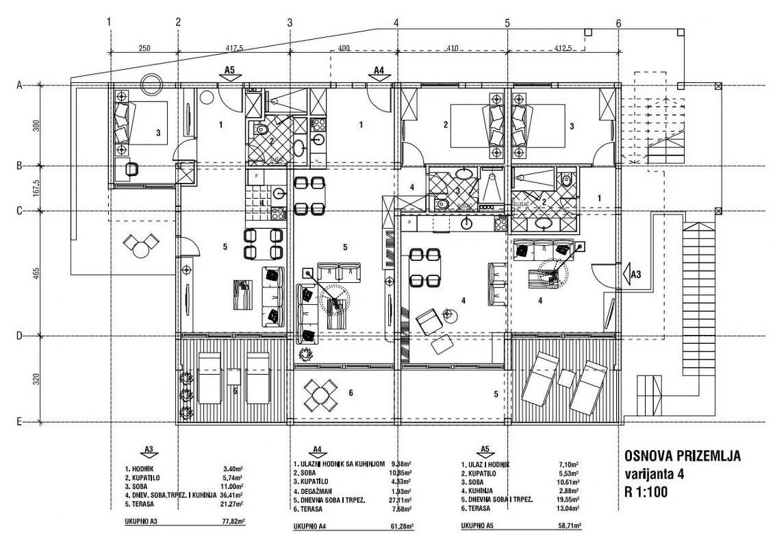
По проекту на втором и третьем этажах предусмотрено шесть апартаментов, площадью от 50 до 80 м2. Из апартаментов будет открываться отличный вид на Адриатическое море. Также имеется гараж, рассчитанный на восемь автомобилей.
До популярного комплекса Луштица Бей и аэропорта Тиват всего 11км.