
340 000 €
340 000 €
| Цена продажи | 340 000 € |
| Цена за кв.м. | 2 615 € |
| Площадь дома | 130 м² |
| Площадь участка | 200 м² |
| Этажность | 2 |
| Всего комнат | 4 |
| Количество спален | 3 |
| Количество ванных | 2 |
| Стадия строительства | Новый дом |
| Объект можно сдавать в аренду |
| Адрес | Черногория, Котор |
| Расположение | у моря |
| Дополнительные расходы по сделке | |
|---|---|
| Не включены в стоимость продажи | |
| Налог при покупке | 3 % |
Стильный таунхаус с современным дизайном
Townhouse A – это стильный двухэтажный таунхаус, рассчитанный на 4 семьи, который идеально сочетает современный дизайн, комфорт и функциональность. Благодаря продуманной планировке и использованию качественных экологичных материалов, этот дом станет отличным выбором для проживания или инвестиций.
Каждый таунхаус располагается на участке 200 м² и предлагает жилую площадь 130 м². В доме предусмотрены 2 или 3 спальни, 2 ванные комнаты, просторная гостиная-кухня, 2 террасы и парковочное место.
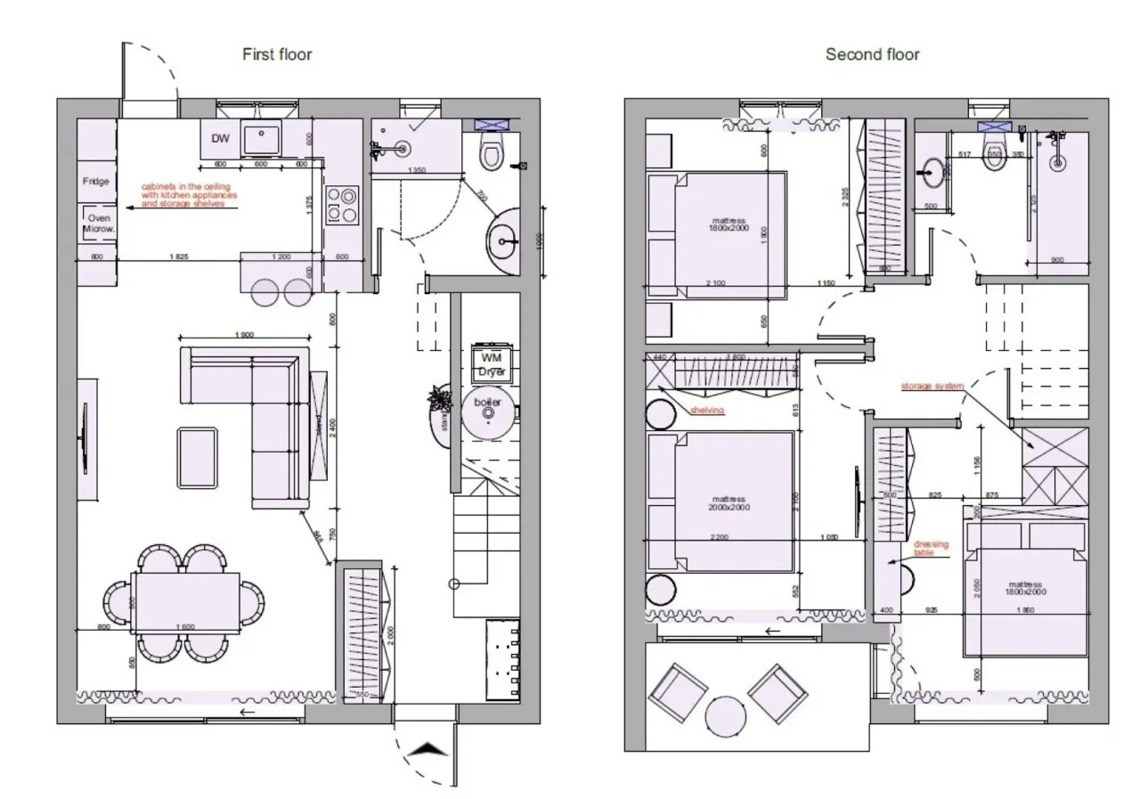
Планировка
1-й этаж (70.14 м²)
• Кухонная зона – 8.52 м²
• Гостиная – 39.64 м²
• Ванная комната – 2.88 м²
• Лестница – 2.88 м²
• Терраса – 15 м²
2-й этаж (55.14 м²)
• Спальня 1 – 13.25 м²
• Спальня 2 – 15.54 м²
• Спальня 3 (опционально) – 7.06 м²
• Постирочная/кладовая – 3.36 м²
• Ванная комната – 3.28 м²
• Лестница – 4.1 м²
• Терраса – 5.51 м²
включено в стоимость:
• Внутренняя отделка: паркет/керамическая плитка, окрашенные стены и потолки (цвет на выбор).
• Внешняя отделка: фасад, крыша, окна и другие элементы.
• Инженерные системы: электричество, канализация, водоснабжение, бойлеры в ванных комнатах, кондиционеры в гостиной и главной спальне, теплые полы в кухне и санузлах.
• Полная отделка ванных комнат: плитка, сантехника.
• Благоустройство участка: терраса перед домом, парковка, дорожка к входу, газон, живая изгородь по периметру.
Современные технологии и дизайн
• Актуальный средиземноморский стиль, сочетающий эстетику и практичность.
• Прочная железобетонная конструкция, обеспечивающая долговечность и безопасность.
• Панорамные ударопрочные окна, наполняющие пространство светом.
• Энергоэффективность, комфортный микроклимат в любое время года.
• Гибкость в планировке – возможность адаптации проекта под индивидуальные запросы.
Дополнительные опции (за доплату)
• Дополнительные дорожки и мощение камнем.
• Бассейн.
• Сауна.
• Фитнес-зона.
• Дизайнерская меблировка “под ключ”.
• Декоративные деревянные элементы во внутренней и внешней отделке.
Гибкие условия и преимущества
• Возможность выбора планировки и дизайна под индивидуальные предпочтения.
• Добавление уникальных опций по желанию клиента.
• Специальные условия для первых 5 покупателей (гибкие способы оплаты, лучшие участки, эксклюзивные предложения).
Townhouse A – это идеальный выбор для тех, кто ценит комфорт, стиль и качество!