
54 900 €
54 900 €
| Дополнительные расходы по сделке | |
|---|---|
| Не включены в стоимость продажи | |
| Комиссионный сбор | 3 % |
Руина с разрешением на строительство
Уникальная возможность построить дом своей мечты на природе — со всей документацией и оплаченными взносами! В тихой и живописной деревне Голац продаётся развалина с действующим разрешением на строительство современного жилого дома. Проект уже включает окончательное разрешение на строительство и оплаченные коммунальные взносы, что позволяет сразу начать строительство.
В цену включено:
В стоимость входят участки:
Участки не связаны напрямую, но находятся в непосредственной близости друг от друга и предлагают отличный потенциал для автономной жизни. Примерно в 200 м от дома есть естественный источник воды, что придаёт объекту устойчивую экологическую ценность.
Участок с домом:
Проект дома включает:
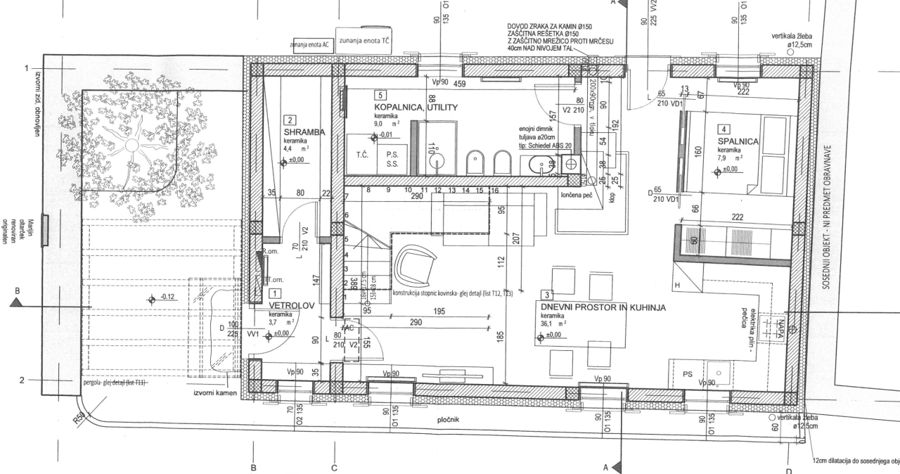
Первый этаж (нетто 61,1 м² / брутто 78,9 м²):
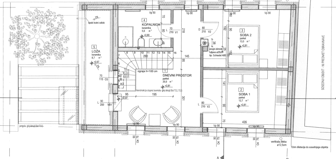
Мансарда (нетто 60,9 м² / брутто 78,84 м²):
Расположение и окружение:
Дом расположен в идиллической и тихой деревне Голац на карстовом плато, окружённой природой. Отличное место для любителей походов, велопрогулок и спокойного образа жизни. Поблизости находятся энергетические точки, лесные тропы и знаменитый оздоровительный центр Dobra hiša zdravja, куда приезжают гости со всего региона.
Почему стоит выбрать именно эту недвижимость?