
950 000 €
950 000 €
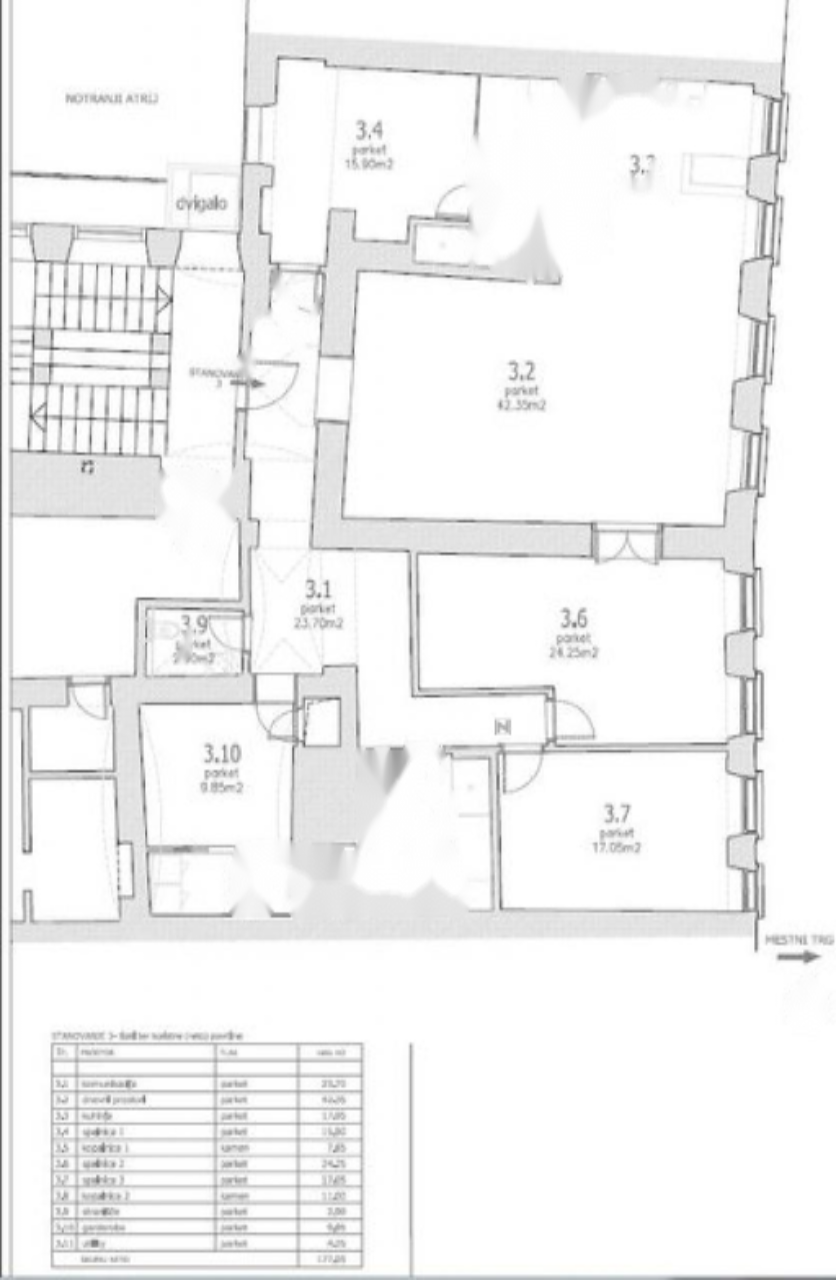
Прекрасная возможность приобрести просторную и светлую четырёхкомнатную квартиру в старой части центра столицы, Любляны. Общая площадь составляет 177 м². Объект был тщательно и высококачественно отреставрирован с использованием лучших материалов в 2012 году. В здании установили лифт, что является редкостью для старинных строений в этой части города.
Квартира располагает просторной гостиной, объединённой с кухней и столовой, площадью 60,3 м². Имеются три просторные спальни: 24 м², 17 м² и 16 м². Для одной из спален предусмотрена личная ванная комната площадью 8 м² с изысканным камнем оникс и санитарной керамикой от Alessi. Также имеется дополнительная ванная комната размером 11 м² и отдельный гостевой туалет площадью 3 м². К услугам будущих владельцев предусмотрены гардеробная комната (10 м²) и хозяйственное помещение (4 м²).
Доступ к зданию осуществляется со стороны набережной Цанкарева и Городской площади, а вход проходит через изысканный проход с настенной фонтаном. Объект оборудован камерами видеонаблюдения и контролем доступа, обеспечивая тем самым безопасность жильцов.
Цена: 950 000 EUR