
2 126 000 €
2 126 000 €
Представляем вашему вниманию эксклюзивный пентхаус в Центре Bellevue, расположенный в непосредственной близости от центра Любляны и парка Тиволи. ️ Это уникальное жилье предлагает непревзойденное сочетание комфорта, простора и завораживающих панорамных видов на Триглав, Камнишко-Савиньские Альпы, Караванке и Шмарну-Гору.
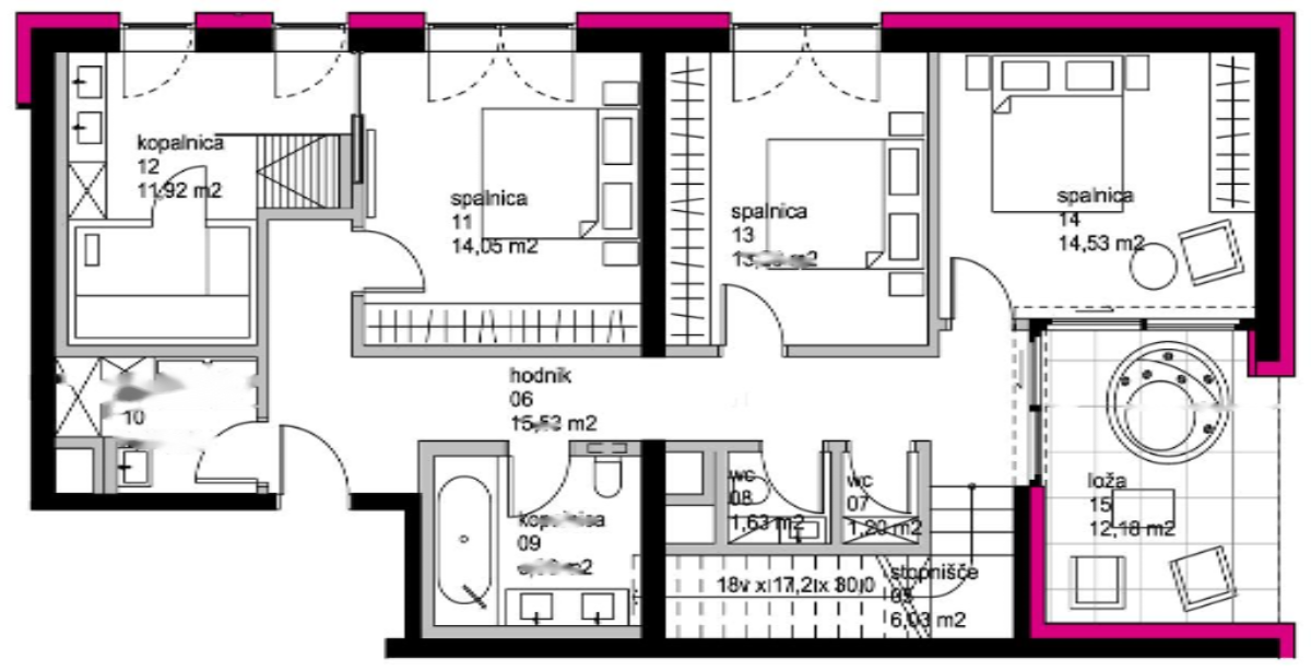
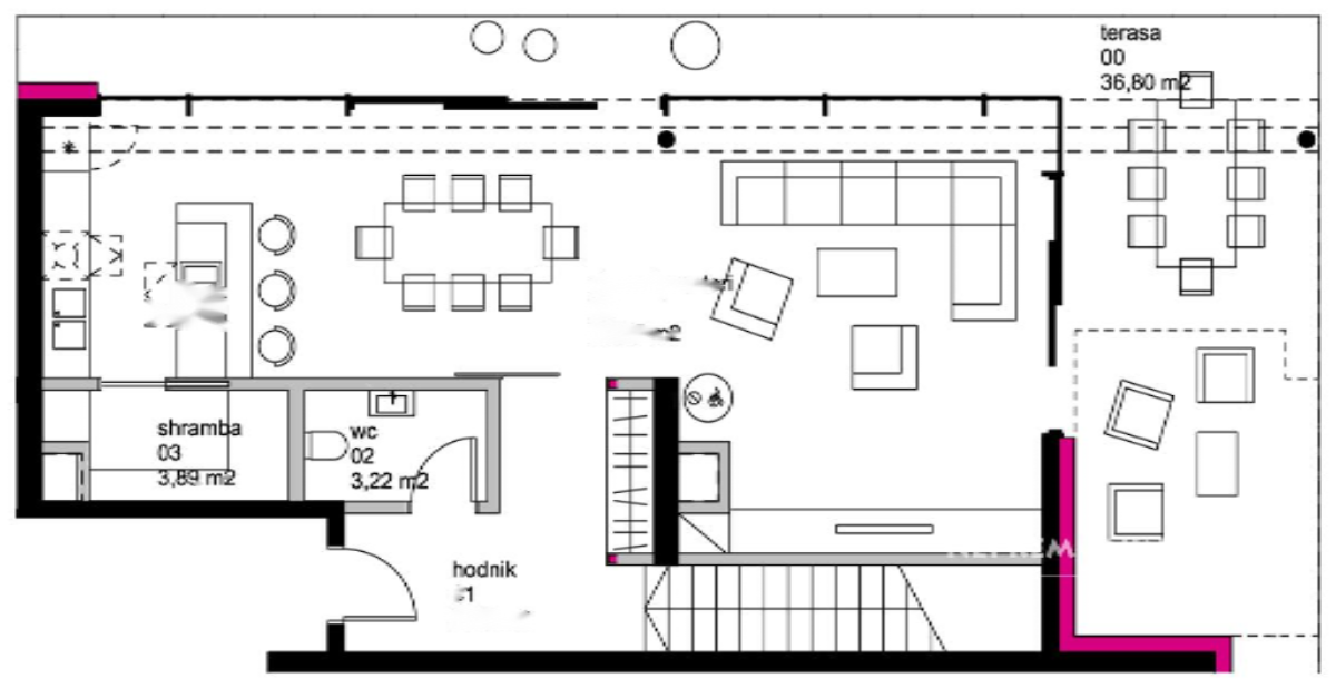
Апартаменты занимают два верхних этажа восточной башни и подходят для самых взыскательных покупателей. В 15 этаже находятся основные пространства для максимального комфорта и уединения: главная спальня с собственной ванной комнатой, туалетом и сауной; две детские спальни и дополнительная ванная с туалетом; пространства для гардеробной, подсобного помещения и кладовой. На 16 этаже размещен просторный жилой зал с потолками высотой более 3 метров. Окруженные стеклянными стенами, эти помещения наполнены естественным светом, создавая атмосферу открытости и элегантности. На просторной террасе можно установить гидромассажную ванну, все необходимые коммуникации уже подведены.
Квартира впечатляет качественной архитектурой и применением передовых материалов, что создает неповторимую атмосферу роскоши. К особенностям также относится наличие трех парковочных мест и просторной кладовой в подвале, обеспечивающих удобство и безопасность для жильцов. Кроме того, жильцы могут воспользоваться внешней игровой площадкой на первом этаже.
Стоимость: 2.126.000,00 EUR