
680 000 €
680 000 €
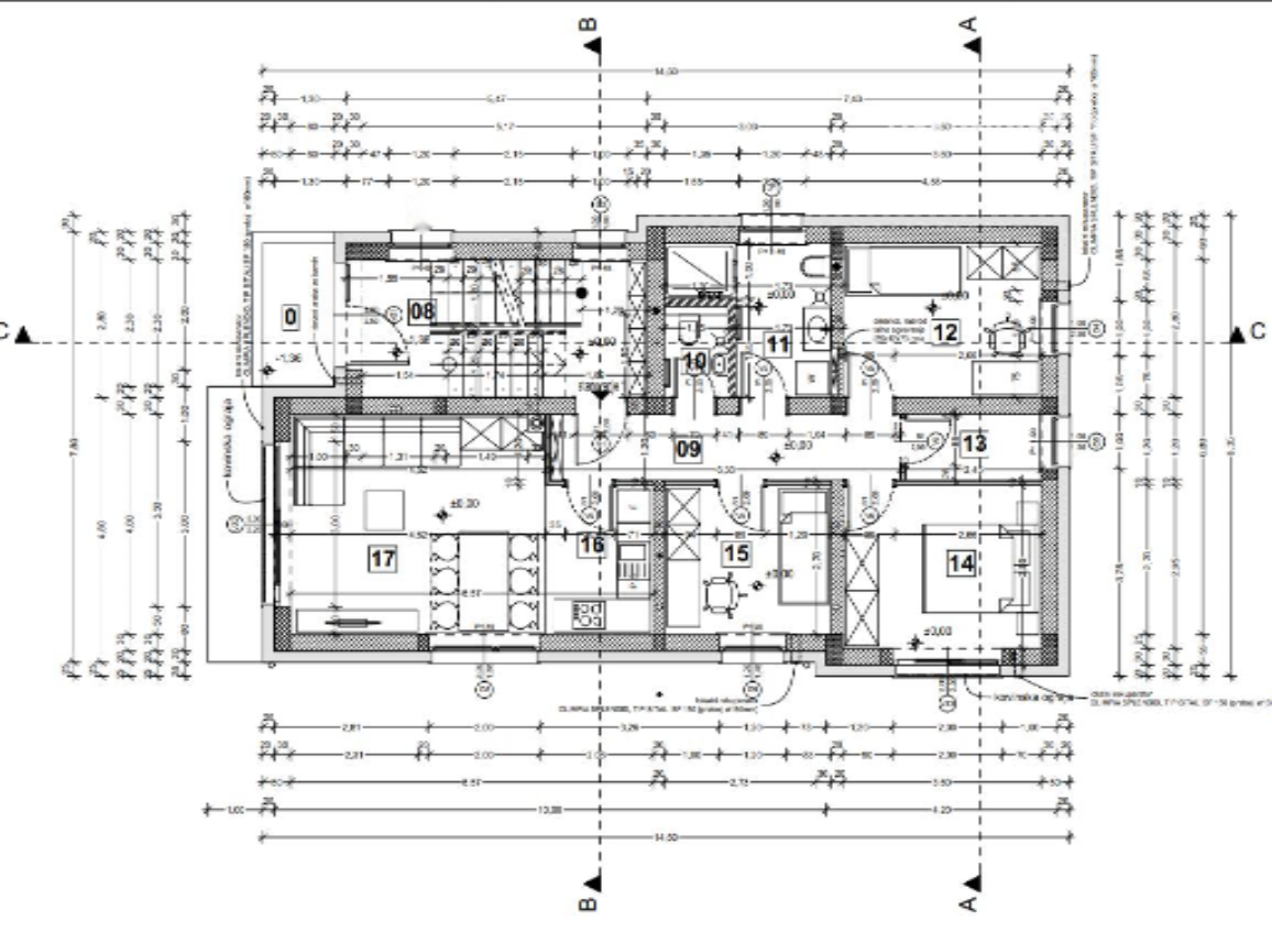
Продажа земельного участка в районе Любляна-Мосте, под Голоувцем. Площадь участка составляет 362 м², предназначен для застройки. Имеется действующее разрешение на строительство двухквартирного дома. Объект спроектирован с этажностью: подвал, первый этаж и второй этаж.
Архитектурное решение предусматривает в подвале размещение сервисных помещений, велосипедной комнаты и кладовых. На первом этаже расположено четырехкомнатное жилье, на втором этаже — четырехкомнатное и полуторное жилье. Внешние территории включают в себя четыре парковочных места. Проект разработан с предоставлением планов этажей, разрезами, внешним оформлением и визуальными моделями. Строительное разрешение действительно до первой половины 2027 года. Проектная документация для реализации (ПЗИ) готова.
Юридическое состояние участка оформлено и без обременений. Участок находится в благоустроенном районе с хорошо развитой инфраструктурой: поблизости расположены образовательные учреждения, магазины, общественный транспорт и зоны отдыха.
Инвестиционная привлекательность оценивается в 8 из 10. Объект расположен в динамично развивающемся районе, что делает его отличным выбором для долгосрочных инвестиций. Участок имеет стратегическое расположение с хорошей доступностью к основным инфраструктурным объектам города.
Итоговая стоимость: 680 000 EUR