
253 650 €
253 650 €
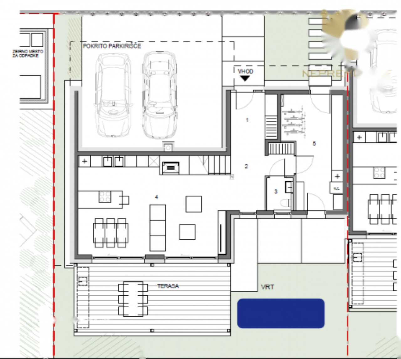
Объект недвижимости предназначен для строительства жилых домов. Площадь земли составляет 445 м², объект в статусе застроенной территории с юридически оформленным и действительным разрешением на строительство цепных одноквартирных домов. Проект включает три земельных участка с доступной инженерной инфраструктурой (вода, канализация, электричество) и доступом с новой асфальтированной муниципальной дороги.
Участки находятся в верхней Задоброве на краю ухоженного и тихого нового жилого комплекса. Каждый участок состоит из двух отдельных прямоугольных парцелл с ровным рельефом, что способствует быстрому и легкому строительству. На каждой из парцелл предполагается возведение цепного дома с общей планировочной площадью 149,2 м², распределённой на две этажи – первый и второй.
Каждое из участков (B6, B7, B9) имеет следующую площадь:
B6: 562 м², стоимость 320,340 €;
B7: 445 м², стоимость 253,650 €;
B9: 453 м², стоимость 258,210 €.
Архитектурная планировка предусматривает размещение входа с восточной стороны, а террасы и зелёной зоны – с западной. Также предусмотрено строительство крытой парковки на два автомобиля. Юридически участки оформлены и свободны от обременений. Инфраструктурная доступность позволяет совмещать комфортное проживание с возможностью быстрого доступа ко всем необходимым сервисам. Расстояние до объектов социальной инфраструктуры: 600 м до школы, 650 м до детского сада, 350 м до магазина, 650 м до игровой площадки. Удобное транспортное сообщение с центром города, до остановки городского транспорта 250 м, до съезда на автомагистраль 1,2 км.
Инвестиционная привлекательность данного объекта оценивается на уровне 8 из 10, благодаря наличию всех необходимых разрешений, готовности к началу строительства и хорошему расположению, что делает его востребованным для строительства и последующей эксплуатации.
Итоговая цена: 253,650 €