
568 000 €
568 000 €
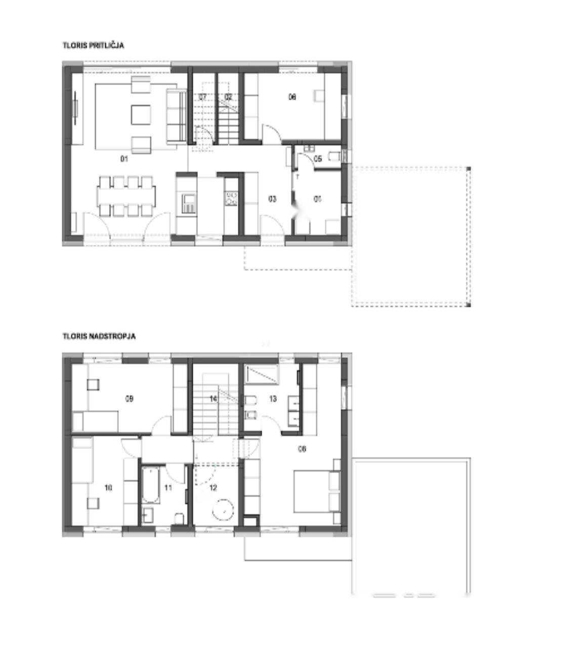
Предлагается новопостроенный двухквартирный двухэтажный дом, расположенный в районе Трново по адресу: улица Йожета Миртича. Эта недвижимость с общей площадью 152,71 м² и участком 314 м² обладает всеми необходимыми условиями для комфортного проживания, подходящими для современной семьи . Из всех 7 двухквартирных домов, каждая жилая единица идентична и предлагает разнообразие в ориентации, предлагая уникальные виды и условия солнечной освещенности ️.
Дом идеально сочетает в себе уединение и близость к городской инфраструктуре. В 4 минутах езды расположено городское ядро, а в 1 минуте – кольцевая дорога. В округе находятся детские сады, школы и магазины, а также пункты отдыха и спорта, такие как велосипедные дорожки, теннисные и баскетбольные площадки ️.
Архитектурное решение внутреннего пространства смоделировано с учетом потребностей семейного образа жизни. Первый этаж включает: прихожую, техническое помещение, санузел, гостиную с кухней и лестницу. На втором этаже расположены: холл с игровой зоной, две ванные комнаты, спальня с гардеробной и две детские комнаты. Гибкий план помещений предоставляет возможность создания третьей детской комнаты .
Энергоэффективность дома соответствует классу A2. Планируется использование теплового насоса с возможностью получения субсидии от Эко фонда. Система охлаждения представлена сплит-системами кондиционирования. Возможна установка центральной рекуперации воздуха. Установлены энергосберегающие трехслойные окна с жалюзи, безопасные входные двери и предусмотрено пространство для камина . Обустроены три парковочных места, из которых два под навесом.
Цена: 568,000 EUR