
1 500 000 €
1 500 000 €
Предлагается к продаже уникальный дом, расположенный в историческом центре Любляны, в районе Рожна долина. Этот элегантный объект, построенный в 1927 году, представлен как часть городской виллы с независимым входом и очаровательным двором с садом. Прекрасная возможность для тех, кто ценит историческую архитектуру и желает вдохнуть новую жизнь в интерьеры.
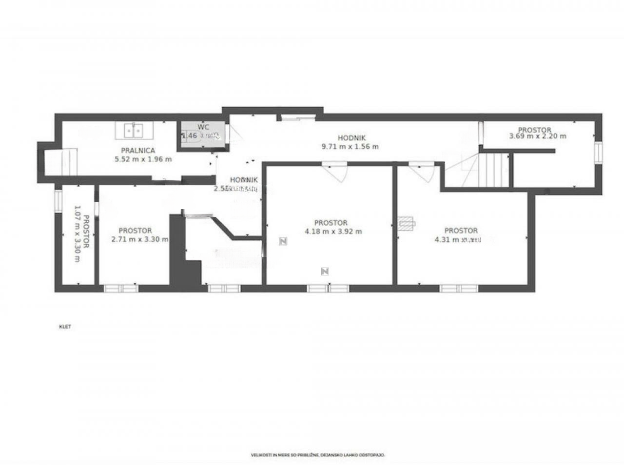
Вилла охватывает пять этажей с продуманным распределением пространств. При входе гостей встречает самостоятельная лестница, соединяющая все четыре жилых этажа. В подвале располагаются два коридора, прачечная, санузлы и шесть просторных комнат. Первый и второй этажи включают длинный коридор, ванную комнату, одну большую комнату и три смежные комнаты. Третий этаж предлагает комнату с самостоятельным коридором, ванную и три дополнительные комнаты с выходом на мансарду, состоящую из четырёх взаимосвязанных помещений.
Эта недвижимость имеет целый ряд преимуществ, включая:
Расположенный рядом с центром города, парк Тиволи и район Рожник, объект предлагает великолепный вид на городскую местность, соединяющую Рожна долину с центром города Любляна. В пешей доступности находятся все необходимые учреждения и услуги: почта, банк, школа, детский сад, магазин и пекарня. Быстрый доступ к автомагистрали и наличия парковочных мест на улице делают этот объект ещё привлекательнее.
Дом с оригинальной планировкой, подходит для проживания большой семьи или нескольких семей. Также возможно его переоборудование в бутик-отель или студенческое общежитие.
Цена: 1 500 000 EUR