
729 000 €
729 000 €
Предлагается на продажу современный и уютный дом с террасой в районе Вич в Любляне, который отличается великолепной архитектурой и высоким уровнем энергоэффективности. Отличное расположение обеспечивает быстрый доступ ко всей необходимой инфраструктуре и центральным объектам столицы, находящимся всего в 2,5 км. Это новостройка сочетает в себе современный дизайн и функциональное планирование, что делает её привлекательной как для больших семей, так и для людей, ценящих комфорт и безопасность.
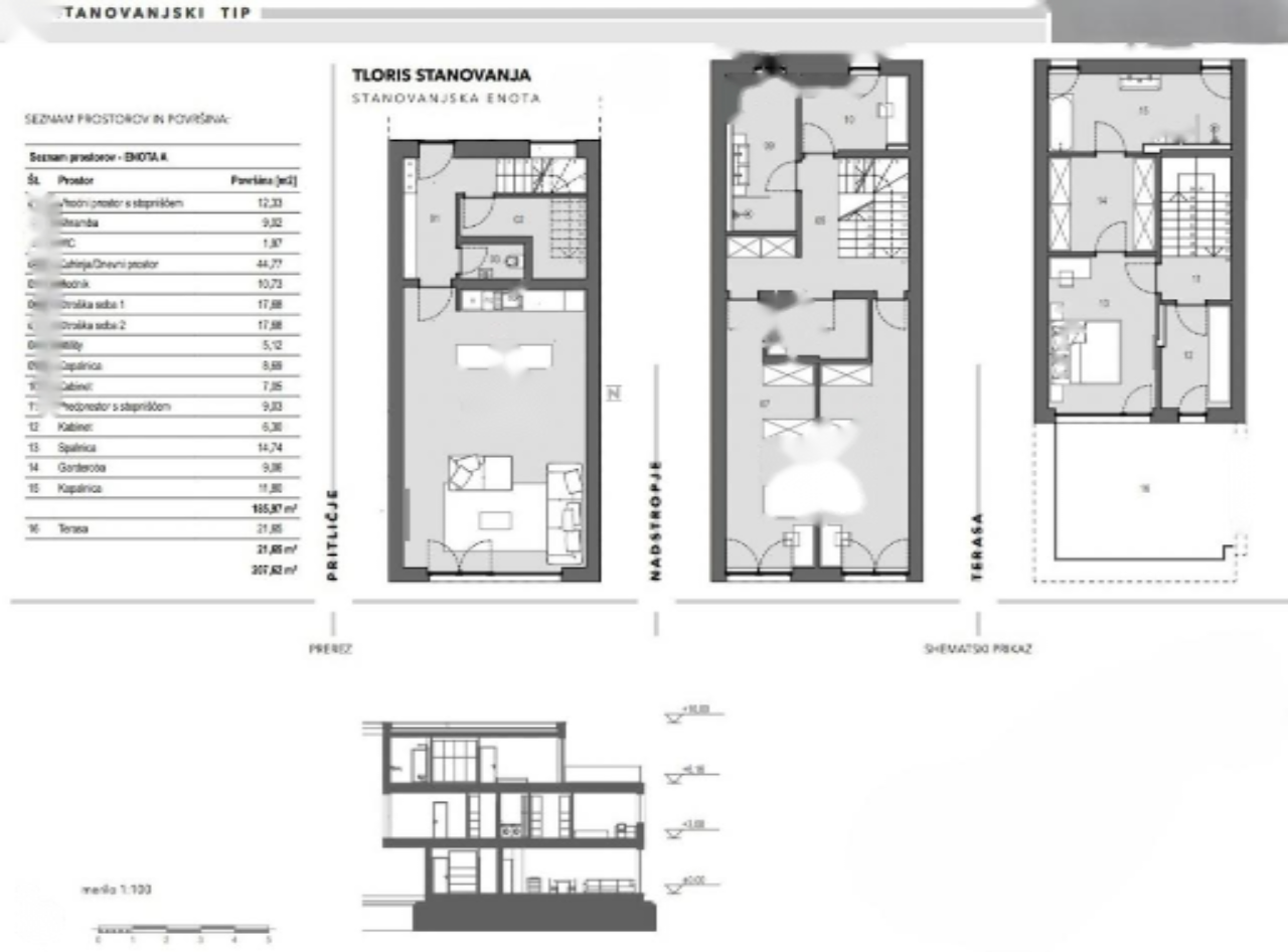
Дом окружает ухоженная зелёная зона, предоставляющая возможность для отдыха и релаксации на свежем воздухе. Внутреннее пространство спроектировано с учётом максимального комфорта. Общая жилая площадь составляет 207,62 м², с отдельно выделенной крышей террасой площадью 21,65 м². Первым этажом предусмотрен просторный открытый план — холл, кладовая, отдельный санузел, и гостиная с кухней, которая ведет в уютный атриум. На втором этаже находятся две детские комнаты, кабинет, хозяйственное помещение и ванная комната. Третий этаж выделен под спальню с гардеробной и ванной комнатой, а также дополнительный кабинет и просторную террасу для отдыха.
Преимущества данной недвижимости включают: современное отопление с напольной системой на природном газе, централизованную вентиляцию, качественное остекление с трехслойными окнами и электрическими шторами. Доступ к дому обеспечен по асфальтированной и благоустроенной дороге, перед домом предусмотрены два парковочных места за барьером.
Дом находится в стадии заключительной строительной фазы, что позволяет будущему владельцу внести собственные коррективы в отделку. Независимо от активной окружающей среды, дом располагает собственным тихим и защищённым двором, что позволяет насладиться уединением в центре городской жизни. Вблизи находятся школы, детские сады, магазины и транспортные узлы, что создаёт прекрасные условия для комфортной жизни всей семьи.
Цена: 729 000,00 €