
719 000 €
719 000 €
Современный дом террасного типа расположен в востребованном районе Вича в Любляне. Он сочетает в себе совершенство современного дизайна, комфорт и энергоэффективность. Несмотря на расположение в динамичной городской среде, дом располагает собственным зелёным оазисом – садом за домом, предоставляющим полную приватность и возможности для отдыха.
Строительство выполнено в третьей удлинённой стадии, с использованием железобетона для стен и перекрытий. Дом можно адаптировать под личные предпочтения благодаря возможности изменения внутренних перегородок. Тёплый и уютный интерьер создают качественная изоляция и трёхслойные деревянно-алюминиевые окна с электрическими занавесками.
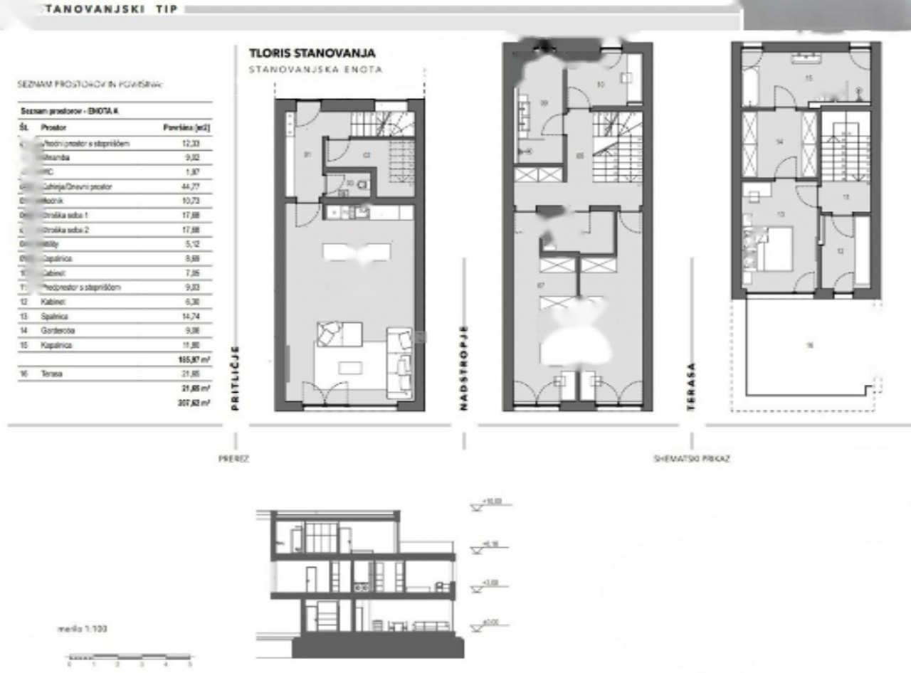
Удобная планировка дома распределена на трёх этажах. Первый этаж включает в себя холл, кладовую, отдельный санузел и просторную гостиную с кухней, ведущей во внутренний двор. На втором этаже расположены две детские комнаты, кабинет, хозяйственная часть и ванная. Третий этаж включает спальню с гардеробной и ванной комнатой, а также кабинет и обширную террасу.
Объект оснащён центральным отоплением с системой тёплого пола на городском газе и централизованной вентиляцией. Все необходимые подключения уже установлены. На прилегающей территории можно найти два парковочных места перед домом с барьером, а добраться до центра Любляны можно всего за несколько минут – расстояние до него составляет 2,5 км. Рядом находятся школы, детские сады, магазины и удобный выезд на автомагистраль.
Цена: 719 000 €