
650 000 €
650 000 €
Представляем вашему вниманию новый дом с террасой площадью 288,3 м² на живописной и спокойной локации у подножия Шмарной Горы. Строительство начнется в первом квартале 2025 года. Дом выполнен с учётом всех современных стандартов и архитектурных решений, что позволяет новосёлам насладиться комфортом и высоким качеством жизни.
Удачное расположение предоставляет возможность быстро добраться как до центра города, так и до автомагистрали. В непосредственной близости находятся зоны отдыха и школа, что делает объект идеальным для семейного проживания. Солнечная ориентация дома и зелёные окрестности создают атмосферу уединённости и спокойствия.
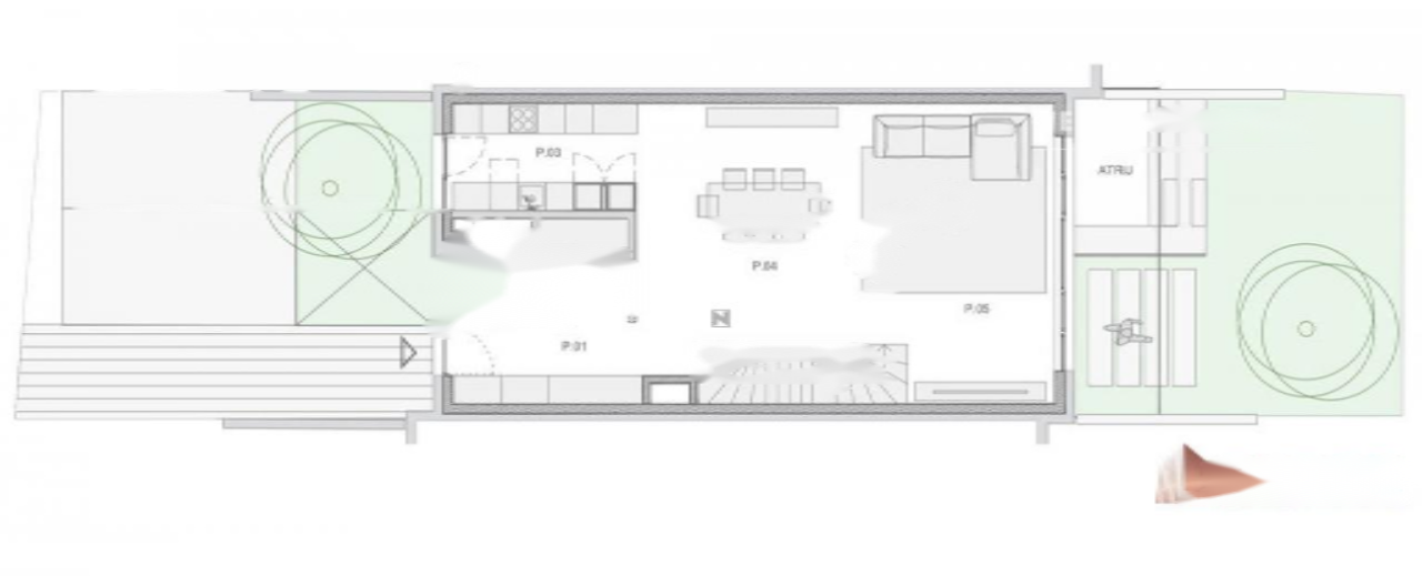
Жилые метры распределены по подвалу, первому и второму этажам. Подвал вмещает утилитарные помещения, кладовую, многофункциональную зону и машинное отделение. Первый этаж предназначен для просторной кухни, светлой гостиной с обеденной зоной и гостевого санузла. Второй этаж включает в себя главную спальню с гардеробной и собственным санузлом, две дополнительные комнаты и ещё одну ванную комнату.
️ Дом является частью закрытого комплекса, все дома которого выполнены в современном стиле из высококачественных натуральных материалов. Фасад облицован кирпичом и классической штукатуркой, что придаёт ему элегантность и прочность. Деревянные трёхслойные окна обеспечивают отличную тепло- и звукоизоляцию.
Завершение строительства подразумевает готовые внешние и конструктивные внутренние элементы, что позволяет будущим владельцам выбрать собственный стиль отделки. Возможно полное завершение дома "под ключ" в течение трёх месяцев после подписания договора. Просторная терраса и компактный атриум позволяют наслаждаться природой, не покидая дом.
Цена: 650,000 EUR